Рекомендации по выбору дверей душевой кабины

Рекомендации по выбору дверей душевой кабины
Следующим важным конструктивным элементом душевой кабины являются двери. Выбирая конкретный вариант, вам придется определиться с методом открывания дверец и материалом их изготовления.
Системы открывания дверей душевой кабины
Информация о существующих методах открывания дверей душевых кабин приведена в следующей таблице.
Таблица. Системы открывания дверей душевых кабин
| Конструкция дверей | Описание |
|---|---|
| Распашная | Дверь оснащается несколькими петлями, смонтированными со стороны панели. Открывание происходит наружу. Главным преимуществом распашных дверей является тот факт, что они позволяют открывать проем для входа максимально широко, благодаря чему обеспечивается свободный доступ внутрь кабины для пользователей с самым разнообразным телосложением. |
| Шарнирная | Торцы двери оснащается поворотными шарнирами, монтируемыми сверху и снизу. Такой тип крепления более безопасный и надежный по сравнению с рассмотренным выше вариантом. В отношении удобства и простоты использования отличий от предыдущей системы нет. |
| Раздвижная | Оптимальный вариант для большой кабины. Конструкция состоит из 2 или большего количества панелей, «наезжающих» одна на вторую. В целом принцип открывания таких дверей аналогичен использованию систем, устанавливаемых в шкафах-купе. |
| Поворотная | При ограниченном пространстве помещения, поворотная дверь может стать прекрасным решением. Конструкция оснащается скрытым треком, по которому плавно движется шарнир, за счет чего обеспечивается открывание двери и беспрепятственный доступ в душ. |
| Складная | Этот вариант также очень хорошо подходит для помещений с небольшим свободным пространством. Складные двери чаще всего устанавливаются в кабинах, имеющих прямоугольную либо удлиненную форму. Открывание двери, складывающейся надвое, может осуществляться внутрь кабины. |
Форма как одна из характеристик
В процессе выбора сантехнического оборудования важно правильно подобрать габариты и форму душевого поддона. Большой ассортимент изделий разных конфигураций удовлетворят любые предпочтения потребителей
Ограничивают фантазию и возможности владельцев жилья только площадь ванной комнаты, которая в большинстве современных квартир требует желать лучшего.
Для малогабаритных санузлов производители разработали компактные угловые поддоны, которые представлены в разных формах:
- прямоугольные;
- квадратные;
- радиусные;
- пятигранные.
Изучив предложения рынка, можно подобрать оптимальный вариант для малогабаритного и просторного помещения.

Стандартные формы душевых поддонов пользуются особой популярностью и спросом у потребителей – они компактны и хорошо сочетаются с конфигурацией помещения
Для потребителей, предпочитающих нестандартные решения в интерьере, на рынке сантехнического оборудования представлены в обширном ассортименте оригинальные поддоны для душевых сложных форм.
Подобные конструкции предполагают наличие значительного свободного пространства и могут быть овальными, многоугольными, круглыми и асимметричными. Возможно изготовление поддонов под заказ по индивидуальным проектам.

Душевые поддоны в форме улитки и других сложных форм не служат для рационального использования свободного пространства, но выглядят нестандартно и оригинально
Эксклюзивные модели разрабатываются для удовлетворения эстетических требований владельца просторного помещения. Они применяются в уникальных интерьерах помещений премиум-класса.
Почему габариты так важны?
Но важно знать не только размер душевой кабины, но и габариты помещения, где планируется ее установить. Очень часто случается так, что гидробоксы попросту не помещаются в ванную по высоте, а слишком широкий поддон не подходит в отведенное ему место
Поэтому покупая душкабинку, следует учитывать размеры комнаты, чтобы купаться было комфортно, и при этом душ не занимал много места.
Перед монтажом нежно измерить высоту потолков, ведь у некоторых моделей поддон превышает 40 см, а душевые кабины с ванной еще выше. Таким образом, при высоте поддона 40 см, а стенок кабины – 175 см, то минимальная высота потолка в помещения должна быть 235 см, иначе конструкция просто не поместится
Далеко не каждая ванная комната располагает такими габаритами, и стоит обратить внимание на более скромные размеры поддонов для душевых кабин

Подбираем размер
Следующим параметром, напрямую влияющим на удобство принятия душа, является выбор размера поддона. Наиболее популярными считаются: 80х80, 90х90 и 100х100 см. Если взять самый компактный 70х70 см, то в нем удобно будет лишь ребенку или очень худому человеку. Модели размером 110х110 см и больше подойдут для полных и рослых людей. Встречаются также и прямоугольные угловые поддоны: 90х70, 100х80, 120х90, но это уже дело вкуса. При постройке поддона из кирпича, размеры подбираются индивидуально. Вообще надо в целом учитывать размеры душевых кабинок, чтобы в итоге все сошлось.

Размеры душевых поддонов
Асимметричные прямоугольные кабинки
Итак, мы выяснили, что размеры стандартных кабинок могут быть:
- симметричными (квадратными): 70×70, 80×80… 120×120 см;
- асимметричными (прямоугольными): 80×100, 80×110, 80×120, 90×110 и 90×120 см.
Размеры душевой кабинки стандартной асимметричной модели позволяют поместить конструкцию на ванне, одновременно совмещая два возможности принятия водных процедур. Однако душевая кабина с ванной несовместимы, если конструкция оснащена функциями парилки, гидромассажа, тропического душа.
Поэтому перед тем как совмещать ванну и душ, нужно изучить функционал изделия и ее габариты.

Основные размеры кабинок для душа
Современный рынок сантехники предлагает широкий выбор душкабин разнообразных видов и размеров. Обычно, производители выпускают стандартные размеры душевых кабин наиболее популярных моделей и форм, ориентируясь на типовые габариты ванных комнат.
Если взять за основу классификации критерий длины стенок, то все душевые кабинки, можно разделить на три группы:
- малогабаритные (минимальные размеры стенок данных моделей – от 70 до 100 см);
- средние (здесь минимальный размер стенок колеблется в пределах 80-130 см);
- полноразмерные (в этом случае длина стенки достигает 170 см и более).
По высоте конструкции различают низкие и высокие модели. В первом случае высота кабинки для душа, включая поддон, находится в пределах 170-190 см, а во втором случае высота изделия может достигать 210-240 см.
Габариты самой маленькой душкабины, согласно перечисленным выше параметрам, следующие: стенки длиной около 75 см, а высота 170 см, поддон у таких моделей может отсутствовать. Некоторые производители изготавливают конструкции с минимальным размером стенок 70 см, что является нестандартным габаритом для ассиметричных конструкций.
Размеры душевых кабин
Выбор душевых кабин разнообразен. Можно подобрать модель любой формы, габаритов и высоты.
По длине стен кабинки делят на:
- Малогабаритные (длина достигает 1 метра).
- Стандарт средних (до 130 см).
- Полноразмерные (больше 170 см).
Высота душевой кабины рассчитывается по параметрам комнаты с учетом установленных коммуникаций
Габариты:
Высота стандартных конструкций бывает низкая (до 2 м) и высокая (до 2,5 м).
Длина стенок малой душевой кабины 70-75 см, высота – 160-170 см. Возможно отсутствие поддона.
Кабинки с равными сторонами имеют размеры от 70 (малые) до 120 см (большие) в длину. Высота до 230-240 см.
Асимметричные прямоугольные душевые. Их размеры: симметричные – 70 на 70 см, 100 на 100 см, асимметричные – 80 на 100 см, 90 на 120 см и т.д.
Душ с ванной или поддоном в наличии
Высота душа – 170 см.
Выбрав душ с ванной важно учесть ее высоту. Высота помещения должна быть не менее 2,5 м.
Бортики у данного вида могут быть низкие (до 15 см) или высокие (до 60-ти)
Максимальная высота конструкции с поддоном или ванной – 2,5 м. Длина достигает 1,5 м.
Угловая модель полукруглой формы. Ширина дверей – 70-90 см. Низкий поддон – 10-15 см. Размеры модели: 70 на 70 см или 1,5 на 1,5 м. Ширина и длина колеблется в зависимости от выбранной модели.
Закрытые боксы. Имеют большую длину и высоту. Минимальный размер – 90 на 90 см.
Для расчета показателей рассчитывайте от роста и размеров использующих их людей и прибавляйте 300–500мм
Почему габариты так важны?
Но важно знать не только размер душевой кабины, но и габариты помещения, где планируется ее установить. Очень часто случается так, что гидробоксы попросту не помещаются в ванную по высоте, а слишком широкий поддон не подходит в отведенное ему место
Поэтому покупая душкабинку, следует учитывать размеры комнаты, чтобы купаться было комфортно, и при этом душ не занимал много места.
Перед монтажом нужно измерить высоту потолков, ведь у некоторых моделей поддон превышает 40 см, а душевые кабины с ванной еще выше. Таким образом, при высоте поддона 40 см, а стенок кабины – 175 см, то минимальная высота потолка в помещения должна быть 235 см, иначе конструкция просто не поместится
Далеко не каждая ванная комната располагает такими габаритами, и стоит обратить внимание на более скромные размеры поддонов для душевых кабин
Основные составляющие душевой кабины
У сантехники есть внутреннее наполнение и основной каркас из поддона, стенок и дверей. Метод соединения оказывает влияние на прочность и герметичность, а способ перемещения створок — на удобство и компактность. Контакт между дверцами обеспечивают резиновыми уплотнителями. Отдельные вариации собирают без задней стенки. Стоят они меньше, но вызывают дополнительные сложности. Кабины бывают в том числе сложных искривленных форм. Их стенки могут не иметь шовного соединения и плавно переходить в другое направление. Лишь у ограниченного количества кабин есть крыша. С ней однозначно лучше, ведь так вода не попадет на потолок и стены. Просторные мультифункциональные модели делают закрытыми чаще. Душевую сантехнику оборудуют панелями управления, верхней подачей воды, приспособлениями для водных процедур, а иногда небольшими отверстиями для проветривания и вентиляторами.
Поддон: форма, материал и габариты
Покупатели видят на рынке большое разнообразие форм: прямоугольную, квадратную, овальную, круглую, угловую, полукруглую, многогранную. Изготавливают и более оригинальные основания вроде ракушек, улиток и листьев. Продают также душевые с многоуровневыми поддонами. Помимо прочего, основания делят на 3 категории — от низких с высотой бортов на уровне 4,5 см до высоких с показателем до 18 см и больше.
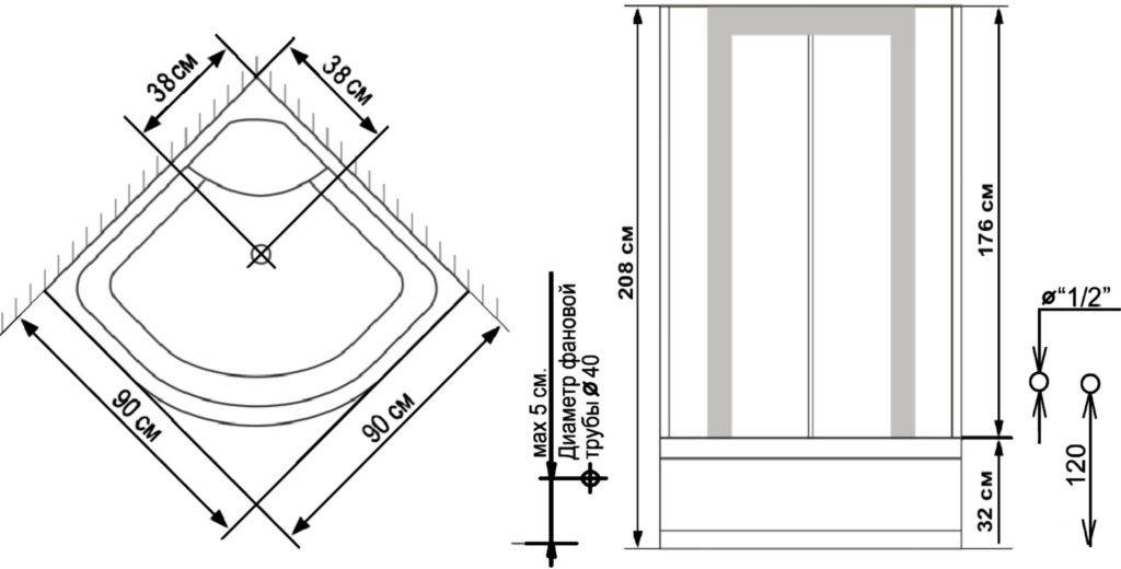
Стороны поддонов достигают 130 см в длину, при минимуме в 70 см. Наибольшее распространение получили модели с параметрами сторон и высоты 1000×1000×140 мм, 900×900×70 и 900×900×50 мм.
В качестве материала для основания применяют металл, акрил и керамику. Чугунные и стальные изделия обладают во многом не схожими характеристиками, а чем-то средним выступают акриловые варианты. Производят также керамические изделия: фарфоровые, фаянсовые и др. Оригинальные и презентабельные модели делают из камня. Лучшими по сумме качеств считают акриловые поддоны.

Стенки
Боковые поверхности бывают симметричными и асимметричными, ровными и изогнутыми. У простых конструкций стенок обычно две или три, и эти варианты имеют еще одну сторону в виде дверцы/дверец. Ширина обычных стенок составляет 70, 80, 90, 100 см, а в больших моделях — от 110 до 140—150, тоже с интервалом в 10 см. Нестандартные отличаются такой же разницей, но имеют ширину 75, 85, 95 и т. д. Изготовители среди нестандартных параметров предпочитают размер 85 см. Ширина продолговатых стенок соответствует типовым длинам ванн: от 120 до 200 см с разницей в 10 см. Наиболее востребованный размеры — 120, 140, 160 и 170 см. Ширину с неокругленным значением вроде 93 или 103 см заказывают, если речь идет о планировке на миниатюрном участке комнаты. Высота же бывает от 190 до 230 см с интервалом в 5 см. Оптимальными считают показатели в пределах 210—225 см, но более высокие модели на практике лучше.

Двери: виды конструкций и их размеры
По конструкции они бывают раздвижными и распашными. Моделей первого типа больше во много раз. Их раздвижные двери открывают благодаря роликовому механизму. Экономия пространства получается двойной. Среди других достоинств — удобство и герметичность. Малочисленные распашные модели открываются в разные стороны, и ни один из вариантов не имеет преимущества над откатными дверями. Все большую конкуренцию последним составляют шарнирные и поворотные модификации. Пример первой альтернативы — складные и «книжные» модели. У поворотных же дверь открывают и смещают в сторону.
Дверцы раздвижных кабин имеют от 40 до 140 см в ширину. У створок квадратных вариантов стандарт размера — 40, 45 и 50 см. Изогнутые полотна делают с шириной от 80—90 до 120—140 см. Габариты распашных дверей обычно составляют 500, 600 и 700 мм, то есть примерно «посередине» между разными откатными.

Размеры поддонов
Поддоны для душевых кабин выпускаются в разных размерах. Это могут быть и миниатюрные поддоны для ограниченного пространства и модели достаточно больших размеров. Если речь идет о стандартных поддонах, то их минимальные габариты 70 х 70 см, максимальные – 130 х 130 см. Эксклюзивная сантехника может иметь любые размеры.
Немаловажен и такой параметр, как глубина поддона. Высота бортов современных поддонов бывает:
- 2-5 см – плоские или мелкие поддоны;
- 5-10 см – средние поддоны;
- 10-18 см – высокие поддоны.

Производители изготавливают поддоны разной высоты и размеров В строительных магазинах можно встретить и более вместительные поддоны, глубиной до 46 см.
На выбор размера душевого поддона влияют как габариты ванной комнаты, так и физические особенности членов семьи. Так, полным людям мыться в 70-сантиметровом поддоне будет неудобно, а порой даже невозможно.
Высота

Невысокие ушевые кабины без крыш стоят дешевле
Высота также играет немаловажную роль.
На неё влияют следующие параметры:
Полная комплектация. Наличие высокого поддона, способного использоваться в качестве ванны, и крыши гарантирует высоту конструкции от 210 до 240 см. Для примера давайте рассмотрим кабинку, возвышающуюся на 218 см, тогда с вычетом расстояния для установки сливных коммуникаций и размера верхнего купола полезное пространство составит 195 см, чего вполне достаточно для взрослого человека.
Но и потолок в ванной должен также соответствовать данному параметру и учитывать возможность вентиляции.
Высота полностью укомплектованного душевого бокса
Неполная комплектация. Низкий поддон не более 10 см и отсутствие крыши уменьшают общую высоту кабины до 170-190 см. При этом в любом случае необходимо учитывать высоту сифона, на которую будет приподнята конструкция. Отличительными чертами такого варианта, кроме меньших размеров, являются отсутствие герметичности, упрощённая инструкция монтажа, повышенный уровень вентиляции и менее высокая стоимость.
Низкие душевые кабины хорошо подходят для установки в дачных домах, построенных по нестандартным проектам и имеющих низкие потолки. Особенно, если вы хотите оборудовать санузел в мансарде, которая, как правило, отличается малогабаритностью.
Характеристика поддонов разных размеров
Такие сантехнические приборы условно делятся на несколько групп: маленькие, стандартные, средние и большие. В каждом случае есть свои плюсы и минусы:
- Маленькие поддоны. В эту группу входят приборы, длина стенок которых не превышает 0,8 м. Учитывая скромные размеры, в душевой кабине не останется места для сидения или функциональных дополнений. Сюда же относится и вариант с габаритами 0,7х0,9 м. Это исключение из правил, однако именно такой поддон отличается удобством при эксплуатации. Малогабаритные сантехнические приборы не подойдут людям высокого роста и с большой массой тела. В таких поддонах пользователь будет чувствовать себя дискомфортно.
Стандартные размеры. Распространенный вариант из этой группы – 0,8х0,8 м. Это универсальный вариант, который позволяет свободно принимать душ, не чувствуя стеснения, а еще в ванной можно установить нужную технику и мебель. Цена данного варианта невысока.
Средние поддоны. Если длина стенок сантехнического прибора составляет 1 м и более, то его можно отнести к этой группе. Распространенным вариантом является поддон с габаритами 1,35х1,35 м. Подобные сантехнические приборы можно устанавливать в более просторном помещении. В этой же группе находится компактный поддон с габаритами 0,7х1 м. Он отличается высокими стенками, благодаря чему может использоваться в качестве детской ванны. Поддоны средних габаритов часто выбирают для совмещенных санузлов.
- Большие размеры. Сантехнические приборы этой группы подойдут для крупногабаритных ванных комнат. Минимальная длина бортика составляет 1,2 м. Благодаря крупным габаритам внутри кабины можно расположить дополнительный функционал: телефонную связь, гидромассаж, стул и пр. В них реализуется возможность установки тропического душа или парилки турецкого типа. Располагать душевые кабины больших размеров можно как в центре помещения, так и в нише, углу.
4 Материалы для этих элементов
Определившись с размером и формой, можно переходить к вопросу выбора материала, из которого будет изготовлен поддон для душевой кабины. Как правило, производители используют в качестве материала акрил или сталь, еще возможны керамические, чугунные поддоны или же изделия из натурального или искусственного камня.
Последние, изготовленные из камня, являются наиболее дорогостоящими и производятся под заказ, индивидуально. Изготовленные из искусственного камня имеют вполне приемлемую цену и потому пользуются большей популярностью. Достоинства таких поддонов для душевой кабины состоят в практичности, длительном сроке службы, а еще повышенной прочности. Даже если на таком поддоне образуется небольшой скол, его можно попросту зашлифовать, не меняя всей конструкции. Эти поддоны предпочтительнее, потому что достаточно быстро прогреваются и их поверхность шероховатая, что позволяет пользоваться душем без опасности поскользнуться.
Поддон из искусственного камня
Следующими по списку идут чугунные поддоны. Они могли бы быть самыми востребованными, но два недостатка затрудняют их широкое использование: высокая цена и немалый вес. В остальном это долговечные, прочные, хорошо прогревающиеся изделия. Те, у кого была чугунная ванна, наверняка помнят о преимуществах данного материала.
Критерии выбора
Сначала необходимо определиться с формой и размерами поддона. При этом исходить следует из габаритов помещения, где будет устанавливаться сантехнический прибор. Дополнительно учитывается заполненность комнаты: будет ли устанавливаться стиральная машина, есть ли мебель. Если в помещении оформлена ниша, в ней можно оборудовать душевую кабину.

При выборе учитывают рост и вес самого крупного члена семьи
Важно обеспечить комфорт всем: не только детям, но и взрослым. Другие критерии:
Материал: акриловые, металлические, керамические, деревянные и мраморные поддоны, аналоги из искусственного камня. Последние из вариантов редко применяют в квартирах. Мрамор и вовсе очень дорогой материал, поэтому он не сильно распространен. Самые популярные – акриловые поддоны.
Место установки: у стены, в центре помещения. От этого зависит форма поддона и конфигурация душевой кабины. Проще и дешевле установить сантехнический прибор у стены. Если располагать в центре комнаты, перепланировка коммуникаций обойдется дорого. У стены разрешается устанавливать не только поддон с прямыми углами. Если места достаточно, можно выбрать и круглый вариант, при этом стенки используются как из мягкого материала, так и из стекла, пластика.
- Готовая или разобранная кабина. Можно приобрести полностью собранную конструкцию. Сложность самостоятельной сборки и установки заключается в необходимости правильного подбора материалов. Для этого используются таблицы соответствия душевых поддонов и крепежных уголков. Если выбрать неподходящие материалы и комплектующие, кабина может прослужить недолго или при эксплуатации начнутся проблемы.
Защита от скольжения. Поддон, как и ванна, имеют скользкие поверхности. Однако в душевой кабине риск упасть выше, так как в нем человек постоянно находится в положении стоя. Чтобы обезопасить себя, необходимо предусмотреть антискользящее покрытие. Это более современный вариант. В продаже можно встретить и другие: с шершавым или рельефным дном. Узор может быть разным: в виде рисунка, абстрактных линий и пр. Выбор делают в соответствии с тем, какой вариант наиболее комфортный при эксплуатации. Некоторые виды поддонов скользят не так сильно: акриловые, из искусственного камня. Если было решено приобрести вариант с гладкой поверхностью, на дно можно положить антискользящий коврик или деревянную решетку.
- Шумовой эффект. Чем меньше толщина материала, тем громче будет звук падающей на дно воды. Стальной поддон, с этой точки зрения, менее подходящий. Чугунный, акриловый аналог и вариант из искусственного камня создают не такой сильный шумовой эффект.
- Теплая/холодная поверхность. Включая воду, иногда приходится становиться на холодное дно. Это неприятно, особенно если в доме прохладно и хочется быстрее согреться. Наиболее предпочтительным является акриловый вариант. Он прогревается очень быстро. Медленнее всех разогревается чугун, камень (натуральный или искусственный), керамика. Пользуясь таким поддоном, придется некоторое время ждать, пока он наберет нужную температуру.
- Акрил, керамика, эмалированный металл – все эти варианты отличаются хрупкостью. Если уронить лейку, то керамический сантехнический прибор может сразу разбиться. Под воздействием значительной нагрузки акриловый и эмалированный прибор не повреждается, однако нарушается их декоративное покрытие. Стальное дно легко прогибается под тяжестью веса. Каменный или чугунный аналог, с этой точки зрения, предпочтительнее использовать. Они отличаются прочностью, не деформируются.
3 RGW

Эргономичный дизайн Страна: Германия Рейтинг (2019): 4.7
Немецкая компания RGW (Royal Glass of Water) работает на рынке сантехники чуть больше 10 лет, но за этот небольшой срок стала признанным лидеров в производстве душевых кабин, поддонов, перегородок и дверей. Продукция компании пользуется спросом в Европе, Америке, а с недавних пор и в России. Визитной карточкой марки является многослойное стекло «триплекс». Стекло практически не разбивается, не рассыпается на осколки, покрыто антиизвестковым слоем, поэтому всегда выглядит идеально. Душевые кабины бренда оснащены удобной фурнитурой, доводчиками дверей, хромированными деталями.
Душевые поддоны изготовлены из качественных материалов — акрила, мрамора, керамики. Эстетичный и эргономичный внешний вид достигается округленными углами и плавными формами. Высота поддонов варьируется от низких к высоким. Глубокие модели можно использовать в качестве мини-ванн. Большинство моделей имеет на дне рифленый рисунок. Многочисленные положительные отзывы о душевых поддонах RGW доказывают, что покупатели рады этому приобретению.
На что обратить внимание при выборе
Выбор поддона в первую очередь нужно начинать с оценки имеющейся ванной комнаты. Оцените, какая форма будет более гармонично смотреться в вашем интерьере, и какой допустимый размер можно разместить в комнате.
Чтобы пользование душем было комфортным, самый крупный жилец должен иметь возможность беспрепятственно наклониться стоя в поддоне. Движение рук и ног тоже не должно быть скованным. Для пожилых людей можно выбрать модель поддона с сидением. Если в квартире находятся домашние животные, например, собака, желательно выбирать более глубокие поддоны.

Выбирайте душевой поддон в соответствии с габаритами ванной комнаты
Следующим важным параметром поддона для душа является его безопасность. Гладкие поддоны здесь в проигрыше, на них можно легко поскользнуться и травмироваться. Самыми безопасными считаются изделия с рельефным рисунком на дне. Некоторые производители наносят на поддоны специальное противоскользящее покрытие. Также в продаже имеются специальные пленки, которые самостоятельно можно клеить на все виды поддонов.
Немаловажна и комплектация сантехники. Поддон должен быть укомплектован сифоном. Отдельно подобрать подходящий сифон часто оказывается достаточно сложно.
При выборе душевого поддона полезно будет ознакомиться с тематическим видео.







