Форма выпуска
Как выбрать правильно унитаз, чтобы не переделывать канализацию?
Обратите внимание на то, как выглядит канализация у вас в туалете. Унитазы производятся с выпусками трех типов:
Косой выпуск
Стоки из унитаза с радостным журчанием устремляются в ароматные дали под углом примерно 45 градусов к горизонту.
Косые выпуски наиболее распространены еще с советских времен; сейчас строители тоже в основной массе при проектировании внутридомовых канализационных сетей ориентируются на них.
Именно такой и только такой унитаз выбираем в том случае, если:
- У вас в туалете раструб чугунной трубы стоит под углом к горизонту;
- Расстояние до двери не позволяет поставить унитаз на 15-20 сантиметров дальше от стенки;
- Вы не имеете ни малейшего желания превращать замену унитаза в капитальный ремонт туалета с заменой участка канализационного стояка и долбежкой перекрытия.
Унитазы с косым выпуском наиболее востребованы
Прямой выпуск
Прямой горизонтальный выпуск более характерен для импортных унитазов; он подразумевает, что труба канализации уходит в стену горизонтально, что в отечественных условиях практически не встречается.
Однако если в процессе поисков, какой унитаз выбрать, вы встретили понравившийся экземпляр именно с таким выпуском – не проблема подключить его к любому раструбу канализации соответствующего диаметра с помощью гофры. Простенький кусок гофрированной пластиковой трубы с резиновым уплотнителем позволяет и развернуть унитаз под любым углом к стенке и трубе.
Ограничение одно: унитаз по сравнению со старым, имевшим косой выпуск, неизбежно выдвинется вперед. Как минимум на 15 сантиметров. Точное расстояние зависит от длины выпуска унитаза и высоты раструба канализации над полом.
Прямой выпуск подразумевает специфичное расположение раструба канализации
Вертикальный выпуск
Выбирать новый унитаз иногда приходится и жителям сталинок 30-50х годов постройки. Многие из этих домов имеют особенность: раструб канализационной трубы торчит вертикально прямо из пола.
Соответственно, для них подойдут унитазы с вертикальным выпуском, которые ставятся на раструб сверху.
Из всех компактов это самый компактный
Биде
Если площадь санузла позволяет, то рядом с унитазом можно установить биде. Эти приборы, как и унитазы, тоже бывают напольные и подвесные.
Размеры напольных биде приблизительно составляют (в зависимости от производителя и модели):
- ширина – 356 мм;
- высота – 400 мм;
- глубина – 540 мм.
Подвесные биде практически не отличаются по размерам от напольного варианта.
Монтируются подвесные биде на системах инсталляции или просто на металлических стеллажах.
Размеры и состав инсталляций для биде отличаются от систем, предназначенных для монтажа унитазов.
Примерные габариты инсталляционной системы составляют:
- ширина – 500 мм;
- высота – 820 мм;
- глубина – 131 мм.
Если места для установки полноценного биде и унитаза в санузле не хватает, можно воспользоваться моделью унитаза с функцией биде.
Такой вариант существенно сэкономит площадь: размеры комбинированного прибора ненамного отличаются от размеров обычного унитаза-компакт:
- длина – 630 мм;
- ширина – 360 мм;
- высота (с бачком) – 770 мм.
Какие выделяют стандартные размеры унитазов для санузлов
Раньше все унитазы с бачком создавались по стандартным размерам, которые считались оптимальными и универсальными для большинства туалетных комнат. Несмотря на то, что сегодня можно выбрать или заказать унитаз любого размера, все равно рекомендуют отталкиваться от стандартных размеров унитаза с бачком, которые были вычислены исходя из средних показателей роста, размера и массы человека. Сантехнический прибор, который отличается присутствием цельнолитой полки, характеризуется длиной 60,5 см, шириной 34 см, а высота унитаза от пола в этом случае достигает 35 см.
Сегодня можно выбрать унитаз практически любого размера, но рекомендуется придерживаться стандартных параметров
Стандартами размеров унитазов с бачком, в которых отсутствует литая полка, будут немного иные параметры. В этом случае длина составляет 46 см, а ширина – 36 см. В таких унитазах параметры высоты могут варьироваться от 35 до 40 см. В отдельную группу можно выделить и детские унитазы, которые устанавливаются как в дошкольных учреждениях, так и в квартирах. Стандартами размеров унитазов, предназначенных для детей, можно считать такие габариты:
- длина должна находиться в пределах от 28 до 40 см;
- ширина – 21-29 см;
- высота – 13-33 см, эта характеристика зависит от возраста ребёнка, который будет пользоваться прибором.
Устройства импортного производства имеют параметры, отличные от отечественных. Так, глубина обычно не превышает 68,5 см, ширина доходит до 36,5 см, а высота унитаза от пола находится на уровне 41 см.
При выборе унитаза импортного производства необходимо помнить, что их параметры отличаются от отечественных
Таким образом, при выборе габаритных размеров унитаза можно ориентироваться на вышеприведённые цифры, которые считаются оптимальными для использования людьми, имеющими нормостенический тип телосложения. Если в квартире проживают люди нестандартной комплекции, в этом случае следует выбирать нетипичные размеры унитазов, которые будут наиболее комфортными для пользователя.
Примерный вес в зависимости от материала изготовления
Вес сантехконструкции напрямую зависит от материалов, из которых она изготовлена. Сам корпус, механизм слива, — все это имеет значение. Как правило, сантехнику изготавливают из сантехфарфора и сантехфаянса. Фаянс тяжелее фарфора, поэтому унитаз, изготовленный из него, будет весить около 26-31,5 кг. Фарфоровый будет несколько легче: 24,5-29 кг.
Кроме того, существуют образцы, изготовленные из мрамора, пластмассы и нержавеющей стали. Мраморные – самые тяжелые. Они будут весить от 100 до 150 кг. Конструкции из «нержавейки» легкие и прочные. Их вес — от 12 до 19 кг. А еще, они не подвержены трещинам и сколам. Такие устройства хорошо устанавливать в нежилых помещениях с большой проходимостью людей.
Самый легкий унитаз — это, конечно, пластмассовый. Изделие любых параметров, изготовленное из пластмассы, будет весить не более 10,5 кг. Но на вес сантехнического прибора влияет не только материал, из которого он изготовлен.
Часто, при выборе наиболее легкого унитаза, покупатель не учитывает вес бачка. А ведь от его объема и материала, из которого сделан механизм слива, тоже зависит общая масса конструкции. Стандартный шестилитровый резервуар весит около 11 кг. Соответственно, при меньшем его объеме уменьшится и общий вес изделия.
Подвесные модели будут весить меньше напольных, за счет того, что на их изготовление ушло меньше материала: ведь ножки у них нет. Итак, вес унитаза может варьироваться от 5 до 150 кг.
Как это отражается на спросе? Владельцы частных домов, желающие установить сантехнику на первом этаже жилища, могут не обращать внимания на ее массу. А вот покупателям, проживающим в многоэтажных домах с ветхими межэтажными перекрытиями, следует придавать весу приобретаемой сантехники первостепенное значение.
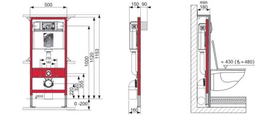
Виды и размеры инсталляций
По типу устройства бывают блочными, или навесными, и рамными. Эти варианты отличаются техническими характеристиками и особенностями монтажа. Не все инсталляции имеют одинаковые размеры.
Даже разные модели одной линейки бренда могут отличаться по габаритам. Еще есть отдельные решения, предназначенные для детей, людей с ограниченными физическими возможностями или крупным телосложением.
Блочные
Данные системы бюджетные, надежные и компактные, отличаются простотой монтажа. Установка возможна только на капитальную стену в существующую или предварительно подготовленную нишу.
Необходимо прочное бетонное основание, покрытое керамической плиткой. Высота большинства конструкций — 80 см-1 м, глубина — от 10 до 15 см.
Размеры блочной системы унитазов.
Рамные
Представлены в широком ассортименте и разных размерах. Это позволяет подобрать подходящий вариант для любого помещения.
Виды рамных инсталляций:
- напольная (опора приходится на ножки);
- настенная (каркас монтируется в стену);
- комбинированная (крепления расположены в четырех точках).
Главная часть рамной конструкции — стальной корпус с обработкой, предотвращающей коррозию. На основе закрепляются туалет, бачок и др. Чтобы уменьшить вес инсталляции, можно выбрать не керамические сантехнические изделия, а изготовленные из качественного пластика.
Средние размеры инсталляций:
- сливной бак — 50 х 9 см;
- высота конструкции — 1,2-1,4 м (20 см должны быть углублены в основание);
- ширина рамы — 50 см;
- глубина установки — 15-30 см;
- высота от пола до центра трубы слива — 22,9 см, до крепежных отверстий — 32 см;
- расстояние между крепежными отверстиями — 18 или 23 см.
Размеры рамной инсталляции.
Стандартные размеры различных видов унитаза
Наиболее популярными моделями являются напольные, подвесные и угловые устройства. К нетрадиционным относятся унитазы больших размеров, для детей и инвалидов, а также совмещенные с биде.
Параметры напольных унитазов
Отечественные производители сантехнических приборов придерживаются следующих параметров:
- унитаз без цельнолитой полки: длина – 33-46 см, высота – 36 см, ширина – 30-35 см;
- унитаз с цельнолитой полкой для бачка: длина – 60,5 см, высота – 34 см, ширина – 32-37 см.
Следует учитывать, что данные параметры указаны без учета дополнительных приспособлений или аксессуаров. Бачок тоже имеет определенные размеры, однако они могут меняться в зависимости от страны-производителя: 68х36х46 см (длина, ширина и высота соответственно).
Самые удобные формы унитазов – на чем остановить выбор?
Какой унитаз выбрать для комфортного и гигиеничного использования поможет определить форма модели. От нее зависит, будут ли появляться брызги при смыве, и насколько легко унитаз будет справляться с задачей качественного смыва.

Тарельчатая чаша. Форма чаши унитаза «тарелка» хорошо известна многим из нас. Такая конструкция часто встречалась в старых унитазах и ретро-моделях. Внутри чаши есть небольшая полка, в которой всегда задерживается минимальное количество воды. Очищать такую модель сложнее, ведь на полочке могут появиться потеки от воды и следы ржавчины. Недостатком унитаза с тарельчатой чашей является разбрызгивание воды во время эксплуатации и, соответственно, не гигиеничность модели.
Козырьковая чаша
Если вы желаете, в первую очередь, выбрать унитаз с хорошим сливом, обратите внимание на козырьковые модели. Это вариант с минимальным разбрызгиванием воды, так как задняя часть чаши расположена под уклоном. Благодаря качественному смыву в чаше не задерживаются неприятные запахи
Благодаря качественному смыву в чаше не задерживаются неприятные запахи.
Воронкообразная чаша
Если вы ищете современный, практичный унитаз чтобы не брызгал, и был экономичным в расходе воды, обратите внимание на воронкообразную форму. Отверстие чаши напоминает лунку, оно вертикальное, округлое, без уклонов. Распространение запахов – минимальное
Распространение запахов – минимальное.
Виды унитазов по способу установки
При выборе модели унитаза, второе, на что нужно обратить внимание – это способ его монтажа
Простая и угловая напольная модель
Классический вариант – это напольный унитаз, который крепится анкерными болтами к полу. Потребителей подкупает лёгкость монтажа и огромное разнообразие моделей.
ФОТО: senspa.ru
ФОТО: techport.ru
Угловые отличаются от традиционных моделей только местом их установки и внешним видом изделия: бачок и задняя часть унитаза имеют треугольную форму. Тип крепления аналогичен – при помощи специальных анкерных болтов.
ФОТО: techport.ru
ФОТО: homify.ru
Подвесной унитаз
Подвесной унитаз – это практичная и компактная модель, которую можно установить даже в небольших комнатах. Смотрится такое изделие очень минималистично и стильно, но требует более сложной установки системы инсталляции. Всё оборудование спрятано за рамкой, на внешнюю сторону выводится только управление.
ФОТО: senspa.ru
ФОТО: aqua-rmnt.com
Статья по теме:
Замеры при установке унитаза
Также унитазы разных фирм, кроме своих габаритов, могут отличаться и установочными размерами. К примеру, унитаз с выпуском наискось более маневреный. Монтирование такого прибора не составит больших хлопот. Удлинить канализационную трубу помогут обычные пластиковые трубы и угловые фитинги.
Выходя из выше изложенного оказывается, что при установке унитаза с вертикальным выпуском большое значение имеют установочные размеры. И по этой причине перед выбором и установкой унитаза нужно обязательно сделать парочку замеров в санузле.

Что необходимо замерять:
- Ширина. Для свободной установки и закрепления унитаза, должно быть расстояние до30-ти см. с каждой его стороны;
- Расстояние между стеной и центром трубы канализации. При небольшом расстоянии унитаз с вертикальным выпуском своей задней частью упрется в стенку, так как маневры с ним невозможны;
- Дистанция до трубы водопровода. Нужно найти оптимальное решение, при котором труба должна быть на близком расстоянии, тогда иметься возможность подключения унитаза при помощи гибкого рукава. Но при этом установить ее нужно на достаточном расстоянии для проведения монтировочных работ.
Если ссылаться на стандарты, то канализация для унитаза с горизонтальным выпуском выводится на расстояние 18 сантиметров между полом и осью прибора. А для прибора с выпуском наискось –этот показатель немного больше и составляет 20 сантиметров.
Выбирая унитаз, также необходимо уделять внимание производителю и фирме, они должны иметь соответствующие сертификаты качества. Положительным моментом в сотрудничестве с большинством компаний по продаже сантехники является установка приборов, которая входит в стоимость покупки либо производится за дополнительную оплату
И желательно ознакомиться с отзывами о выбранной фирме и модели сантехнического прибора. Тогда ваш унитаз прослужит вам долго.
Статьи про унитазы:
- Выбираем унитаз
- Стильный унитаз – высокий бачок
- Для ванной это важный элемент! Унитаз и его выбор
- Установка и подбор подвесного унитаза с инсталляцией
Рекомендации по монтажу
Специалисты, как правило, выделяют габариты, которые подходят большинству людей: 38х48х37-40 см. Однако в зависимости от разновидности изделия выделяют различные способы монтажа
Следует перед началом процедуры важно внимательно ознакомиться с инструкцией
Важно помнить, что стандартные габариты изделий (глубина, высота и ширина), изготовленных в разных странах, отличаются. Поэтому перед покупкой следует заранее удостовериться в точных размерах, чтобы затем не произошло неожиданностей, когда сантехника будет доставлена
Установка, как правило, не представляет сложности (смотрите как произвести монтаж унитаза на кафельный пол), ее может правильно сделать даже начинающий домашний мастер в строительстве.
Унитаз размеры
Watch this video on YouTube
Детские унитазы
Миниатюрные унитазы предпочтительны в основном для детишек, тем не менее есть такие любители, которые не откажутся дополнить свой дизайн ванной, именно таковыми малогабаритными формами. Характеристики детских унитазов почти ни чем не отличаются от взрослых единственное различие высота чащи, которая составляет от 33 до 35 сантиметров. Такой тип, как правило, чаще всего применяются в детских садиках, больницах, школах, лагерях и в иных местах с большим количеством детей.

Стандарт детских унитазов определяется следующими размерами:
- длина от 290 до 350 мм,
- ширина от 460 до 590 мм,
- высота от 260 до 335 мм.
Выбор унитаза по размеру
При выборе унитаза внимание уделяется долговечности, легкости в использовании и ухода. Размеры не всегда учитываются
Если подобрать унитаз, неподходящий по размеру, то пользоваться им будет неудобно. Это может доставлять сильный дискомфорт.
Для выбора унитаза по его размерам учитываются следующие особенности:
- Унитаз должен располагаться на оптимальном расстоянии от двери стен комнаты, чтобы не возникало какого либо дискомфорта во время передвижения.
- Расстояние до унитаза должно быть около 60 см. В противном случае не получится комфортно расположиться на унитазе, так как ноги будут упираться в стену.
- Высота унитаза должна быть универсальной, чтобы каждому человеку было удобно пользоваться им
- Ширина унитаза должна быть такой, чтобы в процессе применения унитаза не возникало каких-либо неприятных ощущений в мышцах ног. Слишком узкий ободок приводит к тому, что его края врезаются в ноги, и это приводит к болям. Если же ободок слишком широкий, то даже от кратковременного использования унитаза может быть онемение в ногах.
- Унитаз с бачком выбирается по размерам таким, чтобы удобно было для каждого потенциального пользователя. При пользовании унитазом человек должен свободно располагаться на нем без какого-либо напряжения или неприятных ощущений.
Эксплуатация напольного устройства знакома и привычна всем, в то время как ,например, настенный унитаз для многих новинка.
Классификации санитарных устройств
Прогресс не стоит на месте — производители систематически поставляют на рынок все новые разновидности. Их можно классифицировать на несколько групп, исходя из критериев.
В зависимости от места фиксации принято различать следующие категории:
- Напольные.
- Подвесные.
Фирмы-производители также делают поправку на возраст своих покупателей и предлагают:
- Санитарно-технические изделия для взрослых.
- Детские варианты.
Чаша в оборудовании может отличаться по форме:
- Воронкообразная.
- Округлая.
- Форма дизайна (в тех случаях, когда допустимо заказное изготовление).
Система слива имеет различия, причем в этом вопросе производители зашли максимально далеко. Имеются следующие варианты:
- Однорежимная. При надавливании на кнопку происходит полное опустошение бачка.
- Двухрежимная. Можно вылить как всю воду, так и только ее часть.
- Бесконтактная. Смыв осуществляется автоматически. Это наиболее дорогостоящий вариант.
Распространенным вопросом является наличие устройств с боковым спуском. Резонность подобного вопроса имеет место исключительно в том случае, если приходится иметь дело с совсем уже маленькими габаритами санузла. Смекалка наших людей воистину безгранична, и боковой выпуск – тому подтверждение. Все дело в том, что если разместить унитаз боком, то можно легко освободить место, необходимое для установки стиральной машинки.

Так вот, такие разновидности на сегодняшний день еще в официальную продажу не поступили, но при желании можно в буквальном смысле сделать все своими руками. С целью обеспечения бокового спуска можно задействовать переходники. На горизонтальных участках следует делать поворот на 90 градусов из двух по 45, хотя некоторые рекомендуют сразу 90, только чтобы обеспечить уклон.
Где установить?
Прежде чем осуществлять подбор модели сантехнического оборудования, необходимо решить вопрос с местом, где прибор будет размещаться. Человек, находясь на унитазе, должен ощущать себя комфортно. Его ноги ни в коем случае не должны опираться в стену или двери. При этом его поза должна быть свободной.
Габариты сантехнического изделия должны быть такими, чтобы расстояние от ободка этого прибора до ближайшего расположенного в санузле оборудования или стены составляло не менее 60 см. Непосредственно перед унитазом будет вполне достаточно расстояния в 70 см. Для того чтобы правильным образом подобрать модель относительно размеров санузла, прежде чем отправляться в магазин, необходимо измерить помещение, а потом разделить полученный результат на 2. Итоговая цифра – это оптимальные размеры прибора в ваш санузел. Ориентируясь на них, и следует осуществлять подбор унитаза.
Частые ошибки при выборе
При определении стандартных размеров приобретаемого унитаза с бачком следует учитывать, в каком месте он будет располагаться, а также провести предварительные его замеры. Основной ошибкой является несоблюдение оптимального расстояния от стен до самого оборудования, что влечет за собой неудобство в эксплуатации или не умещение в габаритах помещения. Унитаз следует располагать от боковых стен или ванной на расстоянии 30-40 см, а расстояние между передней стеной/дверью и краем чаши – более 55-60 см.
Зачастую владельцы не берут во внимание и вид канализационного входа, он может быть косым, горизонтальным и вертикальным. А участок трубы от задней стены до входа в чашу определяет расстояние, на которое его необходимо устанавливать
Немаловажно учитывать, что при выборе размеров унитаза с бачком стандарт цельнолитая полочка увеличивает расстояние сзади
Современные и детские сидения
Сидушки для унитазов также совершенствуются и при многих из них сегодня используются высокие технологии. Среди них можно выделить следующие модели:
- умные крышки;
- с микролифтом;
- с подогревом;
- с функцией биде.
Умные крышки
Автоматические сидения, оснащенные электронным устройством, что способствует комфортному и продолжительному периоду использования. Изделия отличаются своей оригинальностью и наличием встроенного специального адаптера, который легко определяет приближение человека к унитазу и отдаление от него, благодаря чему в нужное время происходит поднятие и опускание крышки. Данный механизм удобен, гигиеничен и занимает немного места, но его стоимость на порядок выше других изделий.
Помимо этого на рынке присутствуют модели с дистанционным управлением, у которых в основном имеются и другие полезные функции – мужское или женское обмывание, регулирование напора воды, а также устройства для гидромассажа.
С микролифтом
Эти изделия во многом повторяют умные сидения, но у них есть свои собственные особенности. Все модели обладают продолжительным периодом эксплуатации, однако их стоимость довольно высокая, поскольку изготовители при производстве прибегают к использованию качественных материалов, что полноценно оправдывают более значительный ценник. В некоторых из изделий отсутствует возможность отключения опции опускания крышки в отличие от более современных решений, в которых это зачастую можно сделать.
Предельное внимание во время приобретения сидения с микролифтом следует уделить материалу, используемому при фиксации, от которого во многом зависит продолжительность периода эксплуатации
Важно! Крепежные элементы из пластика выходят из строя в разы быстрее, чем изготовленные из металла
Важно! Крепежные элементы из пластика выходят из строя в разы быстрее, чем изготовленные из металла.
С подогревом
Эта функция присутствует не только в дорогостоящих изделиях. В специализированных магазинах можно увидеть такие крышки в различном ценовом сегменте. Кроме этого опция подогрева есть неотъемлемой частью сидений с микролифтом или гигиеническим душем. Особенно данная функция является актуальной для помещений с низкой температурой или для дач, которые посещаются в зимний период времени.
С функцией биде
Модели являются обыкновенными сидениями с наличием опции гигиенического душа. Большая часть этих изделий располагает автономным нагревателем воды, что обеспечивает процесс подмывания максимально удобным и приятным. Крышка-биде позволяет не только сэкономить средства, но и сохранить больше свободного пространства в помещении, поскольку при этом не потребуется осуществлять установку дополнительной сантехники.
Для детей
Детские крышки от изделий для взрослых в первую очередь отличаются своими габаритами и в некоторых случаях расцветкой. Зачастую в садиках и других общественных заведениях для детей присутствуют дополнительные унитазы, однако установить его далеко не всегда есть возможность, поэтому для выхода из ситуации приходится прибегать к другим решениям. Одним из таких способов и являются специальное детское сидение, при выборе которого необходимо соблюдать ряд следующих требований:
- Наличие меньшего отверстия, чем в изделии для взрослых.
- Должно быть теплым.
- Желательно чтобы оно было выполнено в ярких цветах.
Ребенок ввиду своих физических особенностей не способен сидеть на крупном изделии, поэтому чтобы обеспечить его безопасность лучше всего все же купить специальную сидушку. К примеру, одним из наиболее оптимальных решений являются присутствующие в продаже модели 3 в 1, которые состоят из крышки, а также взрослого и детского сидения.
К числу недостатков относится непродолжительность эксплуатации, что обусловлено быстрым износом материала, из которого выполнено изделие.
Поняв, как выбрать сиденье для унитаза и на что следует обращать внимание при этом, удастся с легкостью подобрать наиболее подходящее для себя изделие, которое будет хорошо выглядеть внешне, окажется удобным в использовании и простым в уходе, а также прослужит на протяжении многих лет. Видео:
Видео:
Вас может заинтересовать:
Как врезать мойку в столешницу кухни: правильный процесс установки своими руками
Как герметизировать раковину должным образом в столешнице
Как установить раковину с пьедесталом в ванной качественно собственноручно
Установочные размеры
Унитазы разных производителей отличаются друг от друга не только габаритами, но и установочными размерами.
Если вы решили установить унитаз с косым выпуском, то они более мобильны: трубу канализационную, выходящую из стены, можно нарастить при помощи обычных труб и угловых фитингов.
Такой унитаз можно разместить практически в любом месте санузла.
Но если вы остановили свой выбор на унитазе с вертикальным выпуском, то картина здесь будет другая: прибор будет привязан к трубе, выходящей из-под пола.
Максимум, что можно при этом сделать – это развернуть унитаз по оси выпуска в ту или другую сторону.
Поэтому в случае установки прибора с вертикальным выпуском установочные размеры играют важную роль.
Поэтому, прежде чем приобретать прибор, необходимо выполнить несколько замеров в туалете.
Что брать за основу при выборе сидения для унитаза
Производители унитазов стараются усовершенствовать новые модели и сделать их инновационными. Классика уже давно перестает быть привычной в прямом смысле этого слова. В магазине раковины с унитазом уже продаются с крышкой, что разнятся по размеру и комплектации. Есть ряд качеств, которые стоит учитывать:
- комфорт;
- устойчивость;
- гигиенические нормы;
- эстетика;
- размеры и форма.
Главное, чтобы сиденье было удобным, не только для владельца дома, но и всех членов семьи
Обратим внимание на ситуацию: есть две модели красивая и удобная. Даже если крышка не дополнит интерьер, лучше выбирать удобную модель
Обратите внимание! На магазинных полках можно увидеть варианты со многими дополнительными функциями. Примитивно, что некоторые производители создали свои сидения со светодиодами и подогревом, но обоснована ли такая покупка? Каждая дополнительная функция — это и лишние деньги

Сиденье и обод должны быть идеально чистыми. Недопустимы любые пятна и потеки. Их нужно очищать при первой же необходимости и делать это регулярно. Немногие знают, что сиденье покрывается антибактериальным концентратом. Последний — уменьшает количество микробов. Перед покупкой нужно подумать над ее оттенком, чтобы она дополняла дизайн комнаты.
Сиденье должно подходить по форме и размерам. Если раковина унитаза по форме напоминает круг или квадрат, купить для него ободок — не трудно, но придется снимать мерки. Сантехника нестандартных размеров приносит куда больше сует. Сиденье должно выступать за бортики унитаза хотя бы на несколько миллиметров.







