Обязательно ли заземление для водонагревателя
Защита должна быть всегда без исключений по правилам безопасности.
Нужно ли заземлять проточный водонагреватель
Водонагреватели проточного типа безнапорные (индивидуальные) – это небольшие приборы без функции хранения и накопления воды, бака нет. Устройства маленькие, компактные, в форме короба с патрубками и блоком управления внутри может присутствовать небольшой сосуд, сегмент, но только для нагрева проточной воды должным образом.
Условно к разновидностям проточных устройств можно отнести водогрейные насадки на кран, а также смесители, в которые изначально вмонтирован электронагреватель. Часто такие приборы устанавливаются прямо на трубах около умывальника.
Проточное устройство крепится ближе, чем иные типы водогрейного оборудования, перед точкой разбора, непосредственно на трубах к крану, можно получить удар при открытии смесителя, или пользуясь водой из него.
Надо ли заземлять накопительный бойлер
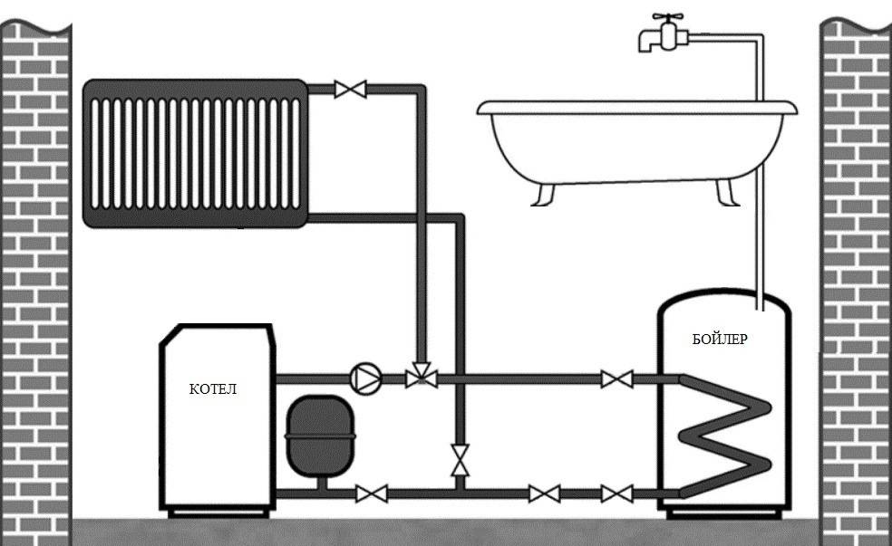
Бойлеры с функцией хранения запаса воды, это большие баки.
Бойлеры косвенного нагрева могут также оснащаться ТЭНами, кроме того, снабжаются рециркуляционными насосами, поэтому описанное касается БКН в полной мере.
Можно ли использовать без заземления
Подключение водогрейного бойлера к электросети без заземления возможно и не отразится в целом на работоспособности, но это нарушение правил безопасности. Есть риск ударов тока вплоть до летального исхода.
При эксплуатации без защиты невозможно получить гарантийное обслуживание. Поэтому заземление предписано всеми инструкциями по безопасности и подключению.
Рекомендовано ставить бак (под потолком, на расстоянии от ванны), где случайное прикосновение к корпусу, например, при одновременном приеме душа, невозможное.
Заземление водонагревателя в квартире и частном доме
Бойлер устанавливается в жилых помещениях для возможности быстрого нагрева воды. Он является электроприбором, обладающим высокой мощностью. Для того, чтобы сделать минимальным риск поражения электрическим током, необходимо подключить к водонагревателю заземление. К сожалению, большинство построек в современной России были выполнены еще в двадцатом веке, такая возможность для них не предусматривалась изначально. Оно и понятно — тогда использовались совершенно другие способы для нагрева воды, которые не имели ничего общего с электроэнергией. Проживая в таком здании, его жильцы либо игнорируют необходимость проведения заземления, либо делают это методом, далеким от определений правил эксплуатации электрооборудования. Это опасно для здоровья, жизни, а также сохранности самой квартиры, а то и всего дома. Если нет земли в старом доме, статья пояснит, зачем она нужна и какими принципами руководствоваться, чтобы заземлить бойлер самому. Итак, ниже мы постарались максимально подробно разъяснить, как сделать заземление водонагревателя в квартире и частном доме.
Как заземлить водонагреватель в квартире?
Заземление водонагревательных приборов нужно не только для обеспечения безопасности жизни и здоровья ваших близких, но и для того, чтобы устройство прослужило как можно дольше. При отсутствии заземления велика вероятность того, что произойдет замыкание фазы и утечка тока, к тому же стоит помнить, что вода, проходящая через нагревательный элемент, содержит в себе электрические заряды. (См. также: Как установить водонагреватель своими руками)
А если подключить водонагреватель к металлическим или металлопластиковым трубам, то он будет аккумулировать в себе блуждающие токи вкупе с зарядами. Такой процесс способен вызвать преждевременную коррозию стенок нагревательного устройства и вывод его из рабочего состояния.
Заземление водонагревателя в квартире происходит следующим образом:
- Осмотрите корпус водонагревателя — практически каждое подобное устройство, работающее за счет электричества, имеет комплект для подключения заземляющей системы. Он включает в себя не только вилку, но гайку и шпильку с шайбами.
Проверьте электрическую сеть, ведущую от распределительного щита, расположенного на этаже, на предмет присоединения всех металлических деталей к системе заземления.
(См. также: Как выбрать электрический водонагреватель)
Установите розетку с заземляющим элементом на расстоянии не менее 50 см от будущего месторасположения водонагревателя. При этом учитывайте, что она должна находиться над уровнем пола не ниже, чем на 80 см.

- Проложите трехжильный кабель от распределительного щита до розетки. Жилы в проводе могут быть медными, рекомендуемое сечение – 1,5 мм. Если есть возможность – делайте скрытую прокладку кабеля, предварительно проштробив пол и/или стены. Однако, вполне допустимо протянуть его, заключив в специальный пластиковый желоб.
После того, как кабель будет протянут, расщепите на обоих концах жилы для того, чтобы присоединить их к клеммам распределителя и розетки.
(См. также: Какие водонагреватели самые надежные)
Теперь можно начинать процесс подключения розетки. Проводники кабеля различаются по цвету, поэтому будьте внимательны.
Обесточьте квартиру и подсоедините провода к розетке, соблюдая цветность.
Подключите проводники к распределительному щитку. Когда будете крепить заземляющий провод, используйте специальный болт.
После того, как все провода будут закреплены, включите распределительную автоматику и проверьте розетку индикатором на наличие напряжения в ней.
(См. также: Подключение накопительного водонагревателя своими руками)
Если же водонагреватель имеет отдельную систему заземления, то подключите провод непосредственно к специальному зажиму на его корпусе.
Подключение в доме
На шуруп, приваренный к проволоке, наматывается оголенный кусок провода и закрепляется гайкой. И уже его выводят на щиток. В щитке устанавливается отдельный автомат и проводится трехжильный провод к розетке.
Характеристики автомата и сечение кабеля подбираются под мощность бойлера. Если у аппарата мощность 2-3,5 кВт, подойдет автомат на 10 ампер и медный кабель сечением 2 мм, для мощности накопительного водонагревателя от 3,5 до 4,5 кВт – автомат 16 ампер и кабель с сечением 2,5 мм, выше – 25 ампер, сечение 3 мм и выше.
Важно правильно подключить провода кабеля, для того, чтобы вы и профессиональный электрик мог правильно понять расположении фазы, нуля и заземления по цвету. Землю подключают на желтый, зеленый или зелено-желтый провод
Ноль подключают на синий провод, а фазу на третий. Обычно он белый, коричневый или черный. Розетку важно покупать с клеммой для заземления.

Далее проводится провод в коробе или канаве в стене, устанавливается розетка. Она должна находиться на расстоянии 50 см от корпуса водонагревателя и 80 см от пола. Запрещено устанавливать розетки над ванными и душевыми кабинками.
Роль заземления
Седьмое издание ПУЭ определяет, что заземление является преднамеренным электрическим соединением любой точки сети, электрической установки или электрооборудования с контуром заземляющего устройства. Последнее представляет собой систему «заземлитель – заземляющие проводники». Выделяют защитное и рабочее заземление.
Защитное
Через бойлер постоянно циркулирует вода, которая, не являясь дистиллированной, способна проводить электрический ток. В случае пробоя изоляции тэнов водонагревателя либо его электропроводки, металлические части корпуса окажутся под напряжением, ток начнет протекать и по воде.
Случайное прикосновение к бойлеру, купание, мытье рук или посуды может иметь травмирующие последствия. Степень нанесенных повреждений будет зависеть от силы тока и продолжительности его воздействия на организм человека. Результат от простой «встряски» до летального исхода. От такого сценария развития событий и призвана предохранять система защитного заземления.

Защитное заземление
Рабочее
Проходящий по токоведущим частям бойлера электрический ток создает собственное электромагнитное поле. Под его воздействием в металлических деталях водонагревателя образуются блуждающие токи, способствующие коррозии, разрушению этих частей. Такое же воздействие оказывают поля от других домашних электроприборов, которыми заполнено окружающее пространство. Некоторые чувствительные люди способны воспринимать это в виде слабого пощипывания. С блуждающими токами призвано бороться функциональное (рабочее) заземление.
Роль заземляющих установок сводится к следующему:
- защите от электрических поражений;
- отводу блуждающих токов;
- способствованию нормальному функционированию электрооборудования.
Проведение защитных мероприятий такого рода особо актуально для влажных помещений, в которых зачастую и эксплуатируется водонагреватель. Подсоединение этого прибора к заземляющей сети сведет возможные негативные воздействия к нулю. В случае пробоев будет срабатывать максимально-токовая защита установленного на линии автомата (во время коротких замыканий на корпус), указывая на имеющуюся проблему.
Устройство заземления водонагревателя
Практически все бытовые приборы в квартире, без которых невозможно представить жизнь современного человека, обладают высокой мощностью. Основное место среди них занимает водонагреватель (бойлер), требующий наличия в квартире системы заземления
Но почему-то мало тех, кто уделяет должное внимание вопросу, как заземлить водонагреватель, пуская все на самотек

Электросхема подключения бойлера.
Без устройства соответствующего заземления значительно вырастает вероятность поражения электрическим током человека в случае внезапного повреждения изоляции ТЭНа. Увеличение опасности связано с отличной проводимостью воды. Помимо этого, как и в любом другом электрическом приборе, в бойлере может в любое время произойти замыкание фазы на корпус. Более того, вода, которая находится в постоянном движении, является основным источником электростатических зарядов, обладающих способностью накапливаться.
Именно по этим причинам заземление водонагревателя относится к первостепенным задачам. Решить их нужно сразу после установки бойлера. Своевременное и правильное заземление — гарантия безопасности человека при эксплуатации водонагревателя.
Именно этот ток приводит к образованию микропор в материале. Они, расширяясь, нарушают герметичность водонагревателя.
Основные способы подключения
Заказывая бойлер для домашнего или коммерческого использования, важно понимать, что, в зависимости от конструктивных особенностей этого изделия, существует два метода подключения его к электросети
Выбранный вами бойлер может быть укомплектован привычной евро-вилкой, тогда, чтобы правильно его подключить, вам придется установить в непосредственной близости от водонагревателя розетку соответствующего типа
Обратите внимание, что такую розетку нужно оснастить своим собственным автоматом на 16 ампер
Возможен и другой вариант: у купленного вами бойлера отсутствуют и вилка, и шнур. В таком случае его придется напрямую подключать к электрощитку посредством автомата. Выключить бак при таком подключении вы сможете, только используя автоматическое реле. Рекомендуется установить выключатель поближе к баку, позаботившись о влагозащитном корпусе для него. Это позволит вам оперативно обесточить бойлер в случае возникновения любой непредвиденной ситуации.
Как сделать заземление
Правильно все организовать можно с помощью наших рекомендаций. Осмотрите водонагреватель и найдите клеммы для заземления. Все современные приборы ими оснащены.

Приобретите розетку с тремя отверстиями и влагостойким корпусом, особенно при установке в ванной комнате.
- Монтируйте розетку на расстоянии 50-80 см от пола и водонагревателя.
- Нужно провести трехжильный кабель из меди от щитка к розетке. При желании можно встроить проводку в стену, проштробив канал.
- Отключите электричество и выполните подключение проводов к розетке. Правильно распределить жилы поможет их расцветка. Смотрите картинку ниже: фото 4
- Подсоедините кабель земли к шине на щитке.

Что делать в частном доме
В частном секторе или на даче организовать заземление нужно самостоятельно. Вам понадобятся навыки использования сварочного аппарата. Также три металлических штыря (уголка, трубы) высотой 1,5 метра и диаметром 15 мм.

Выберите участок на расстоянии 1,5 метра от дома. В дальнейшем здесь никто не должен ходить.
- На выбранном месте выкапывается траншея в форме треугольника. Каждая его сторона не должна превышать три метра. Также прокапывается траншея от угла дома.
- В углах разместите по одному штырю.
- К верхней части приварите болты М8 или М10.
- Вбейте штыри в землю так, чтобы осталась только верхушка размером 5 см.
- Выберите место на стене дома. Лучше выбирать точку на расстоянии двух метров от щитка и 10 см от пола.
- Проделайте отверстие перфоратором.
- Возьмите проволоку из стали (6 мм) и подсоедините к клемме нагревателя.
- Проведите проволоку по стене к отверстию, а затем к штырю на улице.
- Наденьте на болт шайбу и накрутите виток проволоки. Закрепите сверху другой шайбой. Так проделайте с каждым штырем, после чего закольцуйте.
- Засыпьте траншею грунтом, уплотните поверхность.
- Теперь замеряйте сопротивление контура. В норме должно быть менее 4 Ом.
Осталось подключить водонагреватель, залить воду и запустить тестовую работу.
Как вы поняли, провести заземление можно как в хрущевку, так и в частный сектор. Это важная часть работы электрического прибора. Смотрите вижео, чтобы сделать это было еще проще:
Чтобы как можно лучше в частном доме заземлить бойлер, нужно сделать качественный контур заземления и правильно его подключить.
Для этого нужны будут следующие инструменты и материалы:
- Металлический уголок или профиль с шириной стороны 5 см. Понадобится около 18 метров для электродов и их соединения.
- Металлическая проволока или полоса , шириной не менее 3 мм для подведения заземления к щитку.
- Электросварка , которой будет свариваться конструкция контура.
- Болгарка для резки уголков и проволоки. Перфоратор для сверления отверстия в доме для введения заземления.
- Кувалда , которой будут забиваться профиля в землю.
- Трехжильный кабель для проведения электричества в доме от щитка к розетке.
- Современная розетка с клеммой для заземления . Автомат соответствующий мощности накопительного водонагревателя.
- Отвертка, пробник, нож.

Прежде всего, надо выбрать место для будущего размещения контура. Оно должно находиться не дальше пяти метров от щитка. Главное, чтобы сверху не ходили люди и домашние животные, так как в случае пробоя электричество уйдет в землю вокруг. Если в это время там будет кто-то проходить, его ударит током. Можно сделать своими руками сверху этого места декоративное украшение из камней или специально огородить его забором.
Нужно ли заземлять проточный водонагреватель?
Главная роль заземления (проводника, соединяющего электроводонагреватель с землей) заключается в том, чтобы обеспечить безопасность жителей, использующих электроприбор. Защитная функция призвана исключить поражение людей электрическим током при прикосновении к металлическим поверхностям, которые оказались под напряжением. Странно, что этот довольно широко известный факт часто игнорируется. Оголенных проводов боятся все, а незаземленные предметы считаются чуть ли не нормой. С точки зрения безопасности пользователей электроприбора, ответ на вопрос о том, надо ли заземлять водонагреватель, утвердительный.
Надо ли говорить, что если не заземлять водонагреватель, срок его эксплуатации может существенно снизиться. В большинстве случаев бак нагревателя производится из нержавеющей стали. Это отличный долговечный материал, который, однако, подвержен негативному воздействию блуждающих токов, образующихся в электронагревателе без подключения к земле. Токи проходят через тонкую нержавейку и оставляют в ней микропоры. Нужно ли объяснять, что если не заземлять водонагреватель, постепенно поры увеличатся и приведут к потере герметичности. Независимо от того, где бак стоит (в квартире или на даче) и как часто используется, срок его службы значительно сократится.
Таким образом, узнав, как правильно и безопасно заземлить водонагреватель, можно получить некий «громоотвод» для вредоносных микроразрядов блуждающих токов, образующихся в процессе работы данного оборудования.
Способы
Все методы заземления делятся на две категории:
- Защитное. Это способ, при котором бойлер прикрепляют к контуру отдельным проводником. Когда напряжение попадает на водонагреватель, оно отводится в определенном порядке. Напряжение поступает к корпусу электроустановку, затем к проводнику, шине заземления и земле. Согласно рекомендациям электропроводок, сопротивление в этом случае не должно превышать 4 ОМ. Поскольку сопротивление кожи людей больше, ток направляется в землю. При повышении силы тока активируется защитный автомат. Электроприбор выключится самостоятельно.
- Зануление. Розетка снабжена дополнительным проводом. Обычно его окрашивают в желто-зеленый оттенок. Он называется PE-проводником. Деталь подключают к наиболее опасным участкам бойлера. Если нагревательный элемент сломается, ток отправится по следующему пути: фазный провод, корпус устройства, провод защиты, распределительный щиток. Если сила тока станет выше нормы, сработает защита.
В многоквартирном доме
В домах, построенных до 1998 года, приборы заземляют по одному стандарту. Тогда действовал норматив для всей страны. Электроприборы заземляли по схеме TN-C. Ее особенность в глухозаземленной нейтрали.
В современных домах питание проводят с помощью пятижильного кабеля. В нем есть разделение рабочего и защитного нулевого проводов. Провести заземление в квартире можно по схеме, обозначенной на картинке.

В частном доме
Заземлять водонагреватель в частном доме нужно так:
- Вырыть траншею равносторонним треугольником. Стороны должны быть не более 2, 5 метров в ширину. Дополнительно сделать углубление для шины.
- Вбить штыри по углам. Нужно оставить 10-12 см. над траншеей.
- Соединить штыри между собой, зарыть траншею.
- Приварить болты к полосе, предназначенной для стены. К ним будет подключен бойлер.
- Соединить клемму заземления с медным проводом.
На даче
Для дачи лучше выбирать компактный водонагреватель. Но помимо габаритов необходимо учитывать объем, мощность и способ подключения. Также нужно подумать над типом бойлера. Стоит отдать предпочтение накопительным, а не проточным. Первые легче заземлить на даче.
Медный провод подключают к электроприбору с одной стороны. С другой подсоединяют к щитку. В конце на болты припаивается контакт.
Значимость заземления проточного нагревателя
За счет отсутствия накопительного бака работа устройства реализуется напрямую через нагревательный элемент, взаимодействуя с потоком воды. Такие водонагреватели обязательно должны быть оборудованы заземлением.
Пример возможного варианта пробоя устройства лучшим образом аргументирует важность заземления проточного бойлера. Предположим, что имеет место пробой прибора. Результатом такого фазного пробоя корпуса устройства становится образование смертоносной токопроводящей цепочки:
Результатом такого фазного пробоя корпуса устройства становится образование смертоносной токопроводящей цепочки:

Не допускается использовать проточный водонагреватель с рабочим заземлением без УЗО.
Существует общеобязательное нормативное регулирование производства заземляющего контура и его электромонтажа. Основное требование — выполнение работ в соответствии со всеми требованиями по технике безопасности.
Все правила и профильные требования по технике безопасности заземления в обязательном порядке учитываются специалистом при производстве работ. Предусмотрена стандартизация данных такой , которая распространяется на производство всех видов электромонтажных и пусконаладочных работ, в том числе и на заземление.
Обобщив данные документации, регламентирующей заземление разного типа электрооборудования, можно выделить основную задачу заземлителя — реализация рабочей и защитной функции.
Специалисты настоятельно рекомендуют не пренебрегать заземлением бойлера. Рабочая функция заземлителей увеличивает срок эксплуатации бойлера. Нержавеющая сталь, применяемая при изготовлении бака нагрева, подвергается воздействию блуждающих токов. Образовываются микропоры, нарушается общая герметичность прибора. Заземление позволяет нейтрализовать пагубное влияние на теплоизолированный бак за счет отвода токов.
Производство заземления водонагревателя можно представить в виде комплекса последовательного выполнения взаимосвязанных элементов. Каждый элемент заземляющей системы очень важен. Надежный уровень электрической безопасности жильцов и продолжительный срок службы водонагревателя — основные аргументы в пользу необходимости заземления устройства.
Водонагреватель является мощным потребителем, который работает одновременно с водой и электричеством. Поэтому заземление бойлера необходимо выполнять в обязательном порядке. Большинство квартир его не имеют, поскольку здания строились давно. Как организовать безопасное подключение техники, вы узнаете ниже.
Оно обеспечивает стабильную и бесперебойную работу оборудования. Основные причины:
- Вода — отличный проводник тока. Поскольку детали бойлера находятся в постоянном контакте с влагой, заземление позволяет избежать многих проблем. При нарушении целостности проводов вы можете ощутить небольшой разряд, когда открываете смеситель или принимаете ванну. Это может быть смертельно опасно. Когда один из элементов пробьет на корпус, удар тока можно получить при касании.
- Отведение блуждающих токов. Они скапливаются в металлических элементах прибора и приводят к коррозии бака и его деталей. К тому же, человек может ощущать легкое пощипывание во время эксплуатации.
- При ударе молнией в грозу заземление примет удар. Так ваша техника останется в целости и сохранности.
Как заземлить технику, если нет возможности увести проводку в грунт? Например, в квартире. Многие обращаются к вариантам, которые использовать противопоказано. Рассмотрим их подробнее, чтобы предупредить неполадки.
Как нельзя заземлять бойлер
Запрещается проводить процедуру, используя стояк для отопления или водопровод. Во-первых, это приводит к коррозии и быстрой порчи трубопровода. Во-вторых, вы и ваши близкие можете получить удар током, касаясь стояка.

Подключать к крепежной арматуре. Это приводит к таким же последствиям, как указано выше.
Особенности заземления водонагревателя
Заземление накопительного водонагревателя мало чем отличается от заземления любой другой техники. На даче достаточно подключить заземляющий провод к уходящей в землю арматуре, а лучше полноценной заземляющей конструкции.
Заземление проточного водонагревателя организуется подобным образом. Единственное серьезное отличие проточного нагревателя от накопительного в том, что проточный невозможно отключить перед началом использования, что делает его более опасным без надлежащего заземления
Для большей безопасности важно использовать при подключении бойлера УЗО
Как сделать заземление на даче для водонагревателя
В качестве основы заземляющей конструкции подойдет любой металлический лом, который достаточно сварить треугольником и приварить сварочным аппаратом к уходящим в землю металлическим кольям. Подобная конструкция станет полноценным заземлителем. Если же вы не уверены в эффективности такой конструкции, желаете проверенное и надежное решение, а также хотите иметь гарантию, обратитесь за организацией заземления в Алеф Эм.
Не раздумывайте, нужно ли заземление на даче для бойлера. Без него вы станете элементом цепи, по которой течет электрический ток. Закажите заземление или сделайте его сами.
Инструкция заземления
Так как не во всех частных домах или дачах сделан защитный заземляющий контур, то для того, чтобы правильно заземлить бойлер, следует сделать монтаж контура.
При желании такую работу можно сделать самостоятельно. Для этого нужно взять готовую схему установки системы, которая будет лучше подходить в определенных условиях.
Самые распространенные схемы – треугольник и квадрат. Такими фигурами называют схему с соответствующим количеством электродом и их размещением. Например, устанавливая защитный заземляющий контур по схеме треугольника, необходимо приготовить три длинных стальных электрода. Каждый из них должен быть не короче 2 м, 15 мм в сечении. Можно использовать медь, но такой материал очень дорогой.
На расстоянии 4-5 метров от распределительного щитка нужно начертить равносторонний треугольник (1,2-1,5 м сторона). Затем необходимо вырыть небольшое углубление и в местах вершин условного треугольника нужно забить стальные электроды на глубину 1,8 м. Потом нужно эти электроды нужно соединить в верней части при помощи сварки. Для этого берутся стальные шины с толщиной в 4мм, а их длина должна быть немного больше стороны размеченного треугольника. После этого подключается к конструкции заземляющий проводник из однородного металла и прокладывается к распределительному щитку дома. Закрепив его надежно к заземляющей установке, можно закапывать траншею.

Схема устройства электрического водонагревателя
Заземлить бойлер можно будет только после проверки защитного контура при помощи специальных приборов. Также при желании можно приобрести готовый комплект для заземления с соответствующими стандартами. Когда установка конструкции будет завершена, можно перейти к следующему основному этапу работы.
В квартире или же частном доме должен быть проложен трехжильный кабель с проводом для заземления. Он может иметь зеленый, желтый или желто-зеленый цвет. Такая цветовая маркировка не позволит вам спутать провода с другим назначением. Если в доме или квартире проложен двухжильный кабель без заземляющего провода, следует сменить старую проводку.
Большинство современных бойлеров имеют специальную клемму, которую подключают к заземляющему контакту на розетке. На вилке бойлера также может быть особый контакт, и если ее подсоединить к электрической сети, тогда он будет подключен к заземляющему контуру. Наличие клеммы упрощает процесс работы. Затем необходимо сделать проверку электрической сети, отходящей от распределительного щитка на этаже (улице в частном доме).

Правильное подключение бойлера с накопителем в ванной
Обязательно в стене должна быть вмонтирована особая розетка нового образца, которая имеет защемляющий элемент. Она должна располагаться от места размещения бойлера на расстоянии более полуметра, и на высоте более 80 сантиметров от уровня пола. Проложенный трехжильный кабель нужно расщепить на отдельные провода, чтобы подсоединить их к клеммам на розетке и распределительном щитке или трансформаторе.
Работа должна проходить с обесточенной электрической сетью
Очень важно соблюдать правила техники безопасности. Обесточив помещение можно сделать подключение проводников кабеля к соответствующим точкам в розетке и распределительном щитке. Необходимо определить назначения каждой жилы, чтобы все получилось правильно.
Когда все соединения были закреплены, нужно включить электроснабжение, сделать проверку наличия напряжения в сети при помощи отвертки-пробника. Если у определенной модели водонагревателей имеется готовая встроенная система для заземления, тогда нужно подключить провод «земли» напрямую к специальному зажиму на корпусе устройства
Стоит ли делать заземление водонагревателя в квартире или в доме
Жидкость из водопровода — отличный проводник, постоянно находящийся в соприкосновении с нагревателем бытового прибора независимо от типа (проточный либо накопительный). При отгорании проводов, разрушении корпуса нагревательного элемента контакта воды с электричеством избежать не удастся. Соприкосновение с металлическим корпусом бойлера или контакт со струёй воды из неисправного прибора неизбежно сопровождается электрическим ударом. Из-за того что из ванной или душа быстро выбраться невозможно — воздействие тока становится смертельным. Одним из действенных способов уменьшить отрицательное воздействие (в совокупности с установкой средств защиты) является заземление водонагревателя.
Способы заземления бойлера
Наиболее примитивным методом заземлить бойлер в помещении является проводное соединение корпуса с любой металлической деталью, конструкция которой уходит под землю. Подойдет для этой цели, например, батарея центрального отопления. В современных реалиях у жильцов все более популярными становятся пластиковые трубы, в этом случае необходимо проверить стояк, возможно именно он является цельнометаллическим
К тому же важно знать, что заземлять электроприборы на трубопровод и прочие металлические конструкции категорически запрещается, поэтому данный способ организации защиты мы настоятельно рекомендуем обходить стороной (показан на фото ниже)!

Клеммы для присоединения контакта для заземления присутствуют у большинства современных электроустановочных устройств. Это касается, например, розеток с «усиками», которые как раз и являются проводником для «земли». Чтобы сделать грамотное подключение водонагревателя необходимо:
- Произвести установку розетки с контактом для заземления. Ее расположение должно превышать 80 см от уровня пола и полметра от самого бойлера.
- В случае, если дом старый, в нем проведены двухжильные провода. Их необходимо заменить на трехжильные. Одна из жил должна иметь зелено-желтую изоляцию, именно ее правильно пускать на заземление. Провод идет до самого электрощита, который, в свою очередь, также должен быть заземлен.
- Чтобы выполнить проведение нового кабеля своими руками, придется заново сделать штробу для него. Это трудозатратный процесс. Есть более простой выход с использованием кабель-каналов, однако применять его в квартире — не комильфо.
- Отключив вводной автоматический выключатель, нужно присоединить нужные жилы к клеммам розетки (соблюдая цветовую маркировку проводов относительно «земли»)
- Подключить оставшиеся выводы к электрощиту. При этом земля подключается на специальную шину.
Если проводка двухпроводная, как, например, в хрущевке, можно пустить третью жилу через кабель-канал, избежав тем самым необходимость штробления. Это позволит избежать грязи и объемной работы, но выглядеть будет не слишком правильно. Однако это один из часто реализуемых вариантов, когда кабель двухжильный.
Еще один эффективный способ, позволяющий заземлить бойлер — подключить на линию водонагревателя устройство защитного отключения либо дифференциальный автомат с номиналом 10 либо 30 мА (ток утечки). В этом случае, даже если нет заземления в квартире, при возникновении опасной ситуации удара током удастся избежать, так как сработает УЗО и вся линия будет отключена от сети. О том, как подключить УЗО в квартире мы рассказывали в отдельной статье. Про подключение дифавтомата мы также говорили отдельно.

Бывают случаи, когда жильцы используют водонагреватель в ванной только отключенным. То есть вначале вода нагревается, затем бойлер отключается, и только после этого уже используется нагретая жидкость. Способ имеет право на существование, но крайне неудобен – вода остывает, ее может не хватить на весь процесс мытья, да и есть риск забыть отключить нагреватель вовремя. Заземление решит все эти проблемы.
В качестве совета – нужно покупать водонагреватели наиболее высокого качества. Они имеют хорошую изоляцию трубчатого электронагревателя, что позволит свести на нет возможность пробоя. О том, как выбрать накопительный водонагреватель для дома, мы рассказали в отдельной статье.
Процесс подключения заземляющего контакта для бойлера на даче или в частном доме полностью аналогичен описанному для квартир. Исключением служит лишь то, что саму конструкцию, которая сможет заземлить, необходимо возвести самостоятельно и строго руководствуясь правилами установки электрооборудования. О том, как сделать заземление в частном доме, мы рассказывали в отдельной статье.
В заключение хотелось бы отметить, что необходимость грамотного подключения заземления для бойлера, как и любого другого мощного электроприбора, обусловлена в первую и главную очередь безопасностью. Именно заземляющий контакт водонагревателя спасет жильцов от потенциальной возможности возникновения трагедии, а также обеспечит безопасность с точки зрения ликвидации риска пожара. Не стоит играть с судьбой, проще заземлить бойлер и сделать свою жизнь спокойнее. Надеемся, наша пошаговая инструкция по заземлению водонагревателя в квартире и частном доме была для вас полезной и помогла самостоятельно выполнить монтаж заземляющего контура!
Наверняка вы не знаете:
- Как сделать заземление в квартире своими руками
- Для чего нужна система уравнивания потенциалов в ванной комнате
- Как выбрать УЗО для квартиры
Опубликовано: 18.04.2017 Обновлено: 06.09.2019







