Ширма для фотосессий
Фотографироваться или запечатлевать других любят все, но не каждая квартира может позволить без боя отобрать у себя целый угол, предназначенный для такого «фотобаловства». В этом случае самое практичное решение — создание ширмы-профессионала, которая будет появляться на свет, когда она необходима. Для изготовления нужно собрать большой набор инструментов и материалов. В него входит:

- акриловая белая (серая и черная) краска;
- белая краска для дерева (альтернатива — лак);
- клей для сетки на водной основе (ПВА);
- брус;
- дрель;
- мебельные петли;
- металлические уголки-скобы;
- ножницы;
- кисти;
- противомоскитная сетка;
- саморезы;
- степлер.
Для праздничной ширмы можно придумать много украшений, но одно используют неизменно при всех торжествах: это любимые всеми блестки. Размеры конструкции зависят от того, насколько велика семья, как много гостей приглашают радушные хозяева, поэтому данный вопрос лучше решать сообща. Но не забывать, что большая конструкция даже в сложенном виде будет занимать довольно много места.
Так как работа по изготовлению подрамников уже была описана выше, то можно сразу переходить к другим этапам работ.
- Сделанные рамы красят в белый цвет. Если прятать дерево желания нет, то створки покрывают несколькими слоями лака.
- Ориентируясь на размеры рам, вырезают куски москитной сетки. Обязательно оставляют припуски.
- Их раскладывают на рамы, натягивают, затем фиксируют степлером. Материал, выходящий за периметр створок, отрезают ножницами.
- Рамы укладывают горизонтально, предварительно подослав газеты или другой материал для защиты пола. Потом наносят клей, ждут его высыхания.
- На полотне белой краской рисуют различные узоры, для создания теней используют черную либо серую. Высохшую сетку в нескольких местах смазывают клеем, затем обильно посыпают блестками.
- Полностью готовые створки соединяют с помощью мебельных петель и саморезов.
Так как сделать ширму своими руками довольно просто, самое главное для хозяев — определиться, какая именно модель в квартиру (в дом, на дачу или в сад) подойдет лучше всего. И в этом случае не мешает поближе присмотреться к некоторым моделям, которые неизменно пользуются популярностью. Одну из них можно «лицезреть» в этом видеоролике:
Как снять мастер-класс на телефон
Телефоны становятся все круче, встроенные в них видеокамеры позволяют снимать качественные фото и видео мастер-классы. Что нужно учитывать? Каковы особенности съемки МК на телефон?
- Следите за освещенностью, добавьте отражателей, если необходимо.
- Используйте штатив, держатель, чтобы не было «тряски» в кадре.
- Проверьте настройки для видео – соотношение сторон (размер кадра) должно быть 16:9 для дальнейшей публикации на YouTube. Разрешение от 720p, лучше выше: 1080p и т.д.
- Устанавливайте горизонтальную съемку. Несмотря на то, что в программах монтажа кадр можно и повернуть, однако вертикальная картинка сильно попортит вам настроение – что-то не войдет в кадр, будет не того размера и т.д.
Поймите, что нет особых отдельных правил о том, как снимать мастер-классы на телефон. Пользуйтесь всеми рекомендациями для видеосъемок – и все получится. Больше тестируйте, проверяйте.
Как сделать ширму для комнаты своими руками
Тот факт, что сделанная своими руками ширма-перегородка для комнаты обойдется гораздо дешевле не вызывает сомнений, но, помимо этого, такая вещь будет иметь все шансы стать настоящим украшением комнаты. Сделать простую ширму несложно, а увлекательный процесс ее изготовления принесет вам массу удовольствия.

Дизайнеры и художники создают удивительные росписи на ширмах ручной работы
Инструменты и материалы для изготовления
Небольшая ширма выполненная под старину, будет уместно смотреться практически в любом помещении. Винтажные элементы декора давно стали непременным атрибутом современных интерьеров: они создают в комнате ностальгическую теплую атмосферу. К тому же отгородившись ширмой, будет приятно посидеть в кресле за чтением увлекательной книги.

Перегородки в винтажном стиле наполняют комнату особым шармом ностальгии
Перед тем как сделать ширму своими руками, убедитесь, что у вас в наличии имеется весь необходимый инструмент и материал. Для изготовления небольшой деревянной ширмы-перегородки, состоящей из трех секций, потребуется:
- деревянный брус сечением 40 х 40 мм — для изготовления каркаса потребуется 6 брусков длиной около 2 м и столько же элементов чуть короче;
- отрез ткани, желательно плотной и светонепроницаемой — для заполнения секций ширмы;

Процесс создания ширмы своими руками может быть очень увлекательным
страницы с текстом или стихами, вырезанные из книг, газет, личных тетрадей, дневников — для декорирования полотна ширмы. Если какие-то вырезки вам понадобятся в дальнейшем, для работы можно просто сделать копии;

Декорирование перегородки с помощью трафарета и белой краски
- раствор чайной заварки — понадобится для придания листам бумаги состаренного вида. Желательно приготовить крепкий раствор;
- ножницы, малярная кисть, клей ПВА, лак по дереву;
- молоток, угольник, рулетка, отвертка;
- гвозди, саморезы;
- строительный степлер — для фиксации ткани к рамам;
- дверные навесы — потребуется 4 небольшие аккуратные петли для соединения секций ширмы;
- тесьма для украшения.

Схема соединения отсеков каркаса складной перегородки

Процесс крепления бумаги к каркасу ширмы
Последовательность выполнения работ
Работу начинают со сборки рам каркаса. Бруски необходимо подогнать по размерам створки и соединить в рамы. При скреплении брусков следует пользоваться угольником, чтобы соблюсти прямой угол и не допустить перекоса створок. Между собой элементы рамы соединяют посредством саморезов или гвоздей. Готовые конструкции покрывают лаком и оставляют до полного высыхания покрытия.

Брусья каркаса ширмы необходимо надежно скрепить при помощи уголка
Следующим этапом будет соединение секций между собой. Сначала с помощью рулетки на каждой створке размечают места крепления петель. Необходимо, чтобы расстояние от верхней и нижней перемычки до петли у каждой из трех секций было на одном уровне. Петли аккуратно фиксируют с помощью саморезов.

Чертеж соединения секций ширмы друг с другом
Далее, приступают к раскрою ткани. Из нее вырезают 3 части соответствующего размера. До того как ткань будет прикреплена к рамам, ее декорируют. На подготовленные бумажные страницы кистью наносят чайный раствор. Перед нанесением, заварку следует тщательно процедить через мелкое ситечко. Чтобы бумага после высыхания не сморщилась, каждый обработанный лист следует прогладить утюгом. Когда все листы будут высушены, их приклеивают к ткани.

Подготовка листов бумаги под «старину»
Каждый лист покрывают тонким слоем клея ПВА и приклеивают к полотнам. При выполнении этой процедуры нужно следить, чтобы клей не вытекал на ткань. После этого дают клею полностью высохнуть. Подготовленной тканью заполняют секции ширмы. С помощью степлера к одной из сторон рамы крепят полотно, а затем, натягивая ткань, фиксируют ее к остальным элементам рамы. Рекомендуемое расстояние между скобами составляет 4-5 см.
Заключительный этап работы заключается в том, чтобы придать ширме эстетический вид. Для этого, линии крепления ткани к раме закрывают тесьмой. Это можно сделать с помощью клея. Следите, чтобы тесьма легла ровно относительно направления элементов каркаса. Ваша уникальная ширма-перегородка для комнаты готова к использованию!

Крепление полотна ткани к каркасу ширмы

В сети Интернет можно найти массу оригинальных идей по украшению комнатных ширм
Зонирование пространства с помощью комнатных ширм-перегородок позволяет по первому требованию изменять конфигурацию помещения, придавая всему интерьеру таинственности и загадочности. А за ненадобностью, почти невесомая переносная конструкция быстро и легко складывается, не загромождая комнату.
Как сделать ширму перегородку для комнаты своими руками
Изготовление ширмы-перегородки своими руками с использованием тканевого полотна – процесс несложный даже для человека, который недавно начал заниматься созданием самодельных вещей для дома.

Более того, легкая перегородка для переодевания – отличная возможность попрактиковаться в изготовлении несложной мебели для дома.
Перед разработкой собственного плана ширмы изучите несколько идей для изготовления функциональных и долговечных перегородок.
Изготовление рам
После составления эскиза ширмы-перегородки и подсчета размеров приступают к изготовлению рамы:
- Подгон брусков по размеру. Дерево распиливают, сверяют точность совпадения параллельных и вертикальных реек ширмы-перегородки.
- Обработка дерева. Покрыть части рамы грунтовкой и пропиткой нужно до соединения каркаса, чтобы боковые стороны также впитали защитные вещества.
- Соединение элементов. Можно использовать шипы, сделав в каждом бруске пазы, как на молниях для одежды (в каждом элементе пропиливают подходящие отверстия). Когда пазы будут воткнуты друг в друга, их промазывают клеевым составом. Второй вариант – применение гвоздей и саморезов.
- Обработка готовой ширмы-перегородки. Обрабатывают каркас из дерева морилкой, оставляют до полного высыхания.
Можно изготовить ширму-перегородку с ножками, тогда горизонтальные бруски снизу крепят на 7-10 выше от вертикальной деревянной рейки. Таким образом изготавливают еще 2 секции ширмы-перегородки, если сооружение состоит из 3 деталей.

Полотно для ширмы
Пока каркас для ширмы сохнет, подготавливают основное полотно для заполнения сооружения:
- Расчет. Подсчитайте ширину и длину тканевых кусков для ширмы-перегородки, добавьте 4-5 см в зонах крепления к каркасу перегородки. Цвет ткани подберите такой, чтобы он соответствовал дизайну интерьера, но не слишком просвечивался через бумагу.
- Разметка. Вырежьте 3 части для вставки в ширму, декорируйте бумажными страницами, либо другими элементами. Страницы предварительно замачивают в чае на 2-3 часа, достают и хорошо просушивают. Прогладьте листы утюгом.
- Приклеивание страниц. Нанесите на бумагу ПВА клей, наложите на текстиль и разгладьте. Следите, чтобы клей не протекал на ткань, для этого очень удобно использовать малярную кисть.
- Крепление ткани. Используйте строительный степлер для соединения ткани с ширмой. Обе детали перегородки должны хорошо высохнуть. Расстояние между скобками должно быть 4-5 см.
Вместо степлера для крепления полотна к перегородке используют клей на каучуковой основе или декоративные петли.
Для этих целей подходят и специальные строительные булавки.

Cборка ширмы
Финальный этап – соединение секций ширмы-перегородки. Предварительно подготавливают петли, соответствующие размеру рам и предполагаемой тяжести ширмы-перегородки. Приступают к сборке:
Разметка крепления. С помощью рулетки отмечают места, где будут находиться петли. Расстояние от верхней и нижней границы должно быть одинаковым у всех секций.
Монтаж механизмов. С помощью саморезов и дрели (отвертки) устанавливают подобранные ранее петли.
Обработка лаком. Краску – морилку – наносят до соединения деталей, но обрабатывать лаком лучше после крепления всех элементов.
Обработка отделочными деталями. С помощью тесьмы соединяют места крепления ткани к дереву – приклеивают её с помощью ПВА или каучукового клея
Важно проследить прямое расположение тесьмы параллельно дереву каркаса
Через 1-2 дня ширмой можно начать пользоваться. Дополнительно к ткани по желанию крепят кармашки, в которых хранят разные мелочи. Главное, чтобы перегородка выдержала вес.

Чертеж, материалы, инструменты
Изготовление даже такой элементарной конструкции невозможно без подробной ее схемы. Перед этой операцией определяют:
- количество створок будущей ширмы, самый лучший вариант — три-четыре створки: такое изделие будет не слишком большим, однако с устойчивостью его проблем не возникнет;
- размеры, в этом случае параметры зависят лишь от основного место «дислокации»: для детской можно ограничиться невысокой перегородкой, для других комнат (загородного участка) нужна ширма выше и шире.
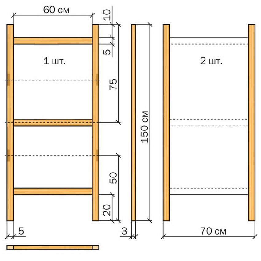
Для создания нестареющей классической модели потребуется приобрести или подготовить:
- деревянный брус (20х60 мм) для каркаса;
- плотную, лучше непрозрачную ткань, одного или нескольких цветов;
- бумагу для выкройки (например, обои);
- небольшие дверные петли;
- мебельные уголки (угловые скобы);
- краску и/или лак, морилку, кисти;
- наждачную бумагу;
- клей для дерева (столярный или ПВА для древесины);
- саморезы;
- украшения — аппликации, ленты, бусины и т. п.
Нужны будут такие инструменты:
- дрель;
- зубило;
- карандаш;
- линейка;
- молоток;
- ножовка;
- мебельный степлер;
- струбцины;
- шуруповерт.
Заменой степлеру может стать каучуковый клей, но в этом случае фиксация полотен потребует больше времени, так как составу понадобится время на схватывание. В противном случае ткань неминуемо провиснет, деформируется.
Рама

Первым делом занимаются изготовлением каркаса.
- На каждой детали с обеих сторон чертят линии, отступив от краев 60 мм. Разметив все детали, делают надпилы глубиной, равняющейся половине толщины реек (10 мм).
- Занимаются соединением в полдерева. Используя молоток и зубило, делают врубки: слои дерева удаляют до распила. Эти поверхности смазывают клеем.
- Все элементы скрепляют, фиксируют в струбцинах, дожидаются полного высыхания состава. К местам соединений для усиления конструкции крепят металлические уголки-скобы.
- Полуфабрикат тщательно шлифуют, затем покрывают лаком (морилкой, краской) в несколько слоев, каждый из которых оставляют на просушку. К рамам саморезами крепят дверные петли — по два крепежа на одно соединение.
Ткань и сборка
Теперь переходят к швейным работам, а затем и к соединению створок.
- На бумагу переносят чертеж рамы в натуральную величину, однако не забывают добавить припуски на швы. Для подгиба оставляют около 50 мм. Если выбран материал разных цветов, куски сначала сострачивают, а потом раскраивают. После изготовления полотна утюжат.
- Готовые изделия из ткани крепят к рамам, используя степлер. Сначала материал фиксируют в верхней части, затем, с натяжением, в низу. Боковые стороны закрепляют в последнюю очередь.
- После оформления всех элементов конструкции рамы соединяют дверными петлями, которые сажают на саморезы.
Как сделать ширму для комнаты своими руками: основные этапы
Вариантов изготовления перегородок огромное множество:
- это и обычная конструкция на деревянном каркасе, которую можно украсить фигурной резьбой и текстилем;
- как вариант − выполнить перегородку в виде жалюзи и покрасить в подходящий по дизайну цвет;
- интересный вариант – перегородка из пластиковых труб или старых межкомнатных полотен.
Для изготовления своими руками ширмы-перегородки для комнаты не нужны дорогостоящие инструменты или специальные навыки, достаточно уметь держать в руках молоток и вкручивать саморезы. Вариант конструкции, которую мы предлагаем сделать пошагово, нельзя назвать самым простым, однако полученный результат удивит, и будет радовать долгие годы.
Необходимые инструменты и материалы
Перед тем как своими руками изготовить ширму из дерева, которая состоит из 3 секций, необходимо подготовить следующие материалы и инструменты:
- рейки из дерева длиной 1,8 м в количестве 6 шт. и столько же единиц длиной около 50 см, равной ширине створки;
- 3 стеклянных листа. Можно заменить матовым пластиком;
- ламели, штапики;
- молоток, шуруповёрт, рулетка, отвёртка;
- саморезы, петли, гвозди;
- морилка или краска, клей, кисть.
Последовательность выполнения работ
| Фото | Описание работ |
![]() | Делаем пропилы в рейках под ламели специальным инструментом или при помощи молотка и стамески. |
![]() | Пазы под соединение необходимо заполнить специальным столярным клеем. |
![]() | В пазы, заполненные клеем, следует вставить ламели. При контакте с клеевым составом они разбухают, получается довольно прочное соединение. |
| Все заготовки собираются в единую конструкцию. | |
![]() | Заготовки сжимаются и фиксируются специальным прижимным устройством струбцином. Их необходимо оставить до полного высыхания клея. |
![]() | Аналогичным образом изготавливают все три секции. |
![]() | Тонируют перегородку в нужный цвет. |
![]() | Далее приступают к декорированию стекла специальной плёнкой. Для этого на поверхность предварительно наносится мыльный раствор, затем раскладывается плёнка. |
| Поверхность следует тщательно разгладить для удаления всех пузырьков жидкости при помощи линейки движениями от середины к краям конструкции. | |
![]() | Вставляют псевдовитраж в рамочную конструкцию и закрепляют предварительно окрашенными штапиками. Аналогичным образом выполняют витражи для всех секций. |
![]() | Устанавливают петли при помощи шуруповёрта и саморезов. |
![]() | Готовая ширма-перегородка станет настоящим украшением интерьера. |
Данный процесс можно наглядно посмотреть на видео:
Watch this video on YouTube
Особенности стиля − ширма японская своими руками
Интерьер в японском стиле очень специфичен, в нём много философии, загадки с одновременной лёгкостью и изяществом. Сделать ширму самостоятельно несложно. Можно изготовить каркасную или экранную из деревянных брусков перегородку со вставками из текстиля или специальной бумаги, причём она может быть простой, влагостойкой и ламинированной.
Размеры перегородки должны сопоставляться с площадью помещения и гармонировать с остальным интерьером. На каркасе ширмы в японском стиле необходимо закрепить при помощи степлера отрез ткани или приклеить бумажное полотно. Можно дополнительно украсить конструкцию тонкими рейками, а для большей устойчивости изготовить перегородку на ножках.
Подробный мастер-класс простейшей конструкции представлен на видео:
Watch this video on YouTube
Перегородку в японском стиле можно выполнить из специальной бумаги
Как правильно собрать каркас
Резаком проделываем в торце досок «карманы» для деревянных шпонов. Все срезы и углубления шлифуем наждачной бумагой. В проделанные отверстия наносим клей по дереву и вставляем ламели. Клей разбухнет и соединение будет очень прочным. Таким образом собираем все составные части каркаса и оставляем до полного высыхания клея. Таким образом собираем три рамы. После высыхания тонируем рамы в нужный цвет, для этого можно использовать краску или морилку для дерева, которая придаст раме интересный цвет и при этом естественный рисунок дерева останется на виду.
Первый вариант перегородки, которую можно создать — это ширма в китайском стиле со стеклом. Далее для ее изготовления будем декорировать стеклянную панель витражной пленкой. Покрываем поверхность стекла слегка мыльным раствором и при помощи обычной линейки убираем с поверхности пузырьки жидкости. Для вставки стекла в раму необходимо проделать по внутренней стороне рамы специальную выемку. Вставляем в нее наш псевдо ветраж, закрепляем стекло используя штапики, мелкие гвозди и молоток. Отметив нужное место, используя шуруповерт и шурупы монтируем все петли, которые будут соединять между собой створки. Первая ширма со стеклом готова. При желании внизу ширмы можно вмонтировать колесики, чтобы было легче перемещать перегородку в нужное место.
Видео пособие по созданию ширмы на деревянном каркасе в китайской стиле:
Второй вариант ширмы будем делать с использованием ткани. В этот раз на подготовленный тем же образом, что и в первом варианте каркас, будем натягивать ткань. Подбираем ткань необходимого цвета и, предварительно сделав замеры, берем с небольшим запасом, чтобы ткань не натягивалась, а висела «шторкой». Можно взять уже готовую плиссированную ткань или создать этот эффект с помощью швейной машинки. Используя строительный степлер или мелкие гвозди крепим ткань-заготовку к раме. К ножкам ширмы можно прикрепить гвоздями подпятники для стульев или мебельные колесики.
Наполнение ширмы может быть каким угодно, вы можете использовать собственные рисунки на ватмане, бусинки, перья и так далее по ходу фантазии. Конечно проще делать ширму на готовом каркасе, но стоит он немало, а зачем тратиться, если дело по сути не пыльное.
Части рамы каркаса можно крепить совершенно разными способами используя тот, который вам удобен: шурупами, столярным клеем стык в стык или с помощью ламелей — этот способ мы описали выше.
Ширма своими руками
Еще недавно ширма воспринималась как просто сильно устаревшая деталь мебели. Но по ней до сих пор ностальгируют многие наши соотечественники. Причем ширма в последнее время популяризируется в намного большей степени, чем пресловутые оттоманки и козетки.
Современные дизайнеры дарят этому предмету интерьера новую жизнь не просто так: ширма позволяет разделить пространство на обособленные участки, создавая при этом небольшой укромный уголок. Для получения такой практичной симпатичной вещи вовсе не придется расходовать громадные деньги на роскошные антикварные образцы.

Не спешите выбрасывать старые двери — из них получится отличный элемент декора для вашего дома

Можно сделать ширму из гладких досок…

…или из готовых дверных створок, которые продаются в строительных магазинах
Выполняется декоративная ширма довольно просто и своими руками. Например, даже если не владеть в совершенстве навыками выполнения столярных работ, то сделать рамки, которые послужат основой при изготовлении отдельных створок, можно и не прибегая к мудреным технологиям. Конечно, они должны четко совпадать в размерах, быть идеально ровными, не перекашиваться, что под силу только настоящим столярам-профессионалам. Но нынешние возможности позволяют обойтись без таких сложностей. Просто вместо основы будущего остова ширмы можно взять готовые рамки из любого магазина художественных и творческих работ. Эти прочные подрамники делаются вполне профессионально и качественно, а поэтому они хорошо подойдут для изготовления ширмы. А так как выпускаются они в самых разных размерах, то их легко можно подобрать для изготовления самых оптимальных для наших условий ширм.

Можно даже не видоизменять двери, если они в приличном состоянии
Ширма разделит дом на зоны, если в этом есть необходимость
Так, например, для получения трехстворчатой ширмы высотой в 210 сантиметров понадобится 9 стандартных подрамников 50х70 сантиметров. Их нужно сгруппировать по три рамки на каждую створку. Из 6-ти рамок размером 60х90 сантиметров можно сложить ширму в 180 сантиметров со створками из двух элементов и так далее.
По теме: Цветок декабрист

Делаем ширму из 4-х створок. Вам понадобятся 4 гладких доски

Также вам понадобятся обои, на ваш вкус

Доски нужно окрасить со всех сторон. Но, если у вас мало краски, то можно покрасить только торцы

Затем на доски (после полного высыхания краски) клеятся обои

Получилась вот такая красивая ширма своими руками
В выборе подрамника нужно исходить не только из нужных пропорций и запланированных размеров ширмы, но также из предлагаемого магазинами ассортимента. Выбирая из имеющихся в наличии рамок, можно существенно сэкономить время и упростить выполнение поставленной перед собой задачи.По такому же принципу делается и детская ширма своими руками
. Разница только в том, что выполнить ее намного легче, ведь и сам размер меньше как минимум на треть. К тому же и расход средств тоже существенно уменьшается. Но в такой ширме не обойтись без достойного декора. Ведь если ее «взрослый» аналог можно выполнить вообще без каких-либо украшений, то детский интерьер предрасполагает к сказочным игрушечным деталям.
Альтернативный вариант из картонных труб
При изготовлении ширм-перегородок используют любые подручные средства: пластиковые трубы, акриловые панели, ветки бамбука и даже CD-диски или пластинки.

Оригинально смотрится ширма-перегородка из картонных трубок, который очень похож на бамбук, только более ровный, но такой же экологичный.
Собственноручно сделать ширму-перегородку из картона несложно:
- Подгонка труб. Обрежьте с помощью ножниц или строительного ножа картон (можно чередовать, добиваясь эффекта неоднородности). Выложите конструкцию вряд, подогнав внизу по одной линии.
- Разметка. Сделайте на каждой трубе в 20 см от низа будущей ширмы-перегородки отметки для отверстий. То же самое сделайте в 1 м от верха конструкции, ориентируясь на самую высокую трубу (отметьте точку В).
По центру перегородки сделайте еще точу и назовите ее С. - Сделайте отверстия. На малых оборотах дрелью просверлите отверстия строго по разметке на ширме-перегородке.
- Соединение деталей. Проденьте через точки A, затем В и С по веревке, сдвиньте ширму и прочно завяжите декоративную нить.
Финальный этап – обработка ширмы-перегородки красящим материалом. Можно выбрать светло-коричневый оттенок, а дополнительно нарисовать «глазки», как у деревьев, имитируя бамбук.
Материалы для изготовления ширм: как выбрать?
Во все времена ширмы изготавливались из дерева различных пород, а затем на деревянный каркас натягивали текстильную часть. Теперь для создания конструкций используют всевозможные, и даже порой необычные материалы.
Таблица 2. Виды материалов, используемые для изготовления перегородок
| Материал, иллюстрация | Комментарий |
|---|---|
Древесина и аналоги | При изготовлении изделий используют как шлифованную древесину, так и соединения различных реек и досок. Нередко для подобных целей используют фанеру, потому что такой материал имеет бюджетную стоимость и легко поддается обработке. Кроме того, для изготовления ширмы можно использовать любые старые, ненужные предметы (это могут быть даже деревянные двери или оконные рамы). Установить такую перегородку можно как в помещении, так и во дворе своего дома. |
Металл | Такой материал используют для изготовления каркаса ширмы, после чего изделие можно обшить древесиной, тканью и даже бумагой. Заказать такой каркас можно мастеру, у которого имеется специализированное оборудование. Стоит отметить, что не следует делать цельную металлическую ширму, потому что она будет отличаться не очень привлекательным внешним видом и большой массой. Рекомендуется для подобных целей использовать тонкие металлические прутья. Металлическая ширма отлично впишется в оформление зимнего сада с различными растениями. |
Трубы из пластика | Трубы ПВХ часто используют для изготовления различных каркасных конструкций, в том числе и перегородок. Основным их положительным качеством по сравнению с другими изделиями является небольшой вес, поэтому такую ширму можно без каких-либо проблем переносить по комнате. Отличаются конструкции простотой в уходе, их достаточно протереть влажной тряпкой, чтобы удалить пыль. Изделия часто используют в уличных условиях, чтобы спрятаться от активных лучей солнца в жаркую погоду. |
Пластиковые плиты | Это популярный материал, используемый для изготовления различных ширм. В продаже имеются уже готовые декоративные панели, которые довольно просто фиксируются на каркасе. Преимущество конструкций заключается в том, что они не деформируются при воздействии влаги, высокой температуры, поэтому их часто устанавливают в душевых. |
Картон | Наиболее дешевый и доступный для большинства населения материал, который используется при изготовлении ширм. Особенность в том, что из него можно сделать любую декоративную конструкцию — из картона можно быстро вырезать детали любой формы с помощью канцелярского ножа, а затем закрепить их между собой. Недостатком ширм из картона является лишь плохая устойчивость к негативным изменениям окружающей среды, поэтому они подходят только для квартиры, да и там требуют регулярного обновления. |
Ветви | Из такого материала довольно часто изготавливают различные декоративные ширмы, ведь подобные конструкции выглядят эстетично и необычно, а также имеют небольшую массу, отличаются мобильностью, благодаря чему их довольно легко переносить. Стоит отметить, что правильная обработка материала позволит установить ширму даже на улице. |
Виниловые диски | Самый необычный способ изготовления перегородок из представленных выше вариантов. Зафиксировать пластинки можно при помощи различных декоративных нитей, благодаря чему получится своеобразный занавес. Такие ширмы применяют только в декоративных целях, расположить их можно в квартире, в офисе, магазине или кафе. |
Тканевая ширма с деревянным каркасом своими руками
Классический вариант – это ширма из ткани, которая натянута на деревянную раму. Изделие изготавливается в виде трюмо, книжки или гармошки. Количество рам влияет на конечную форму. Подготовьте следующие инструменты и материалы:
- дрель, шуруповерт;
- строительный степпер;
- ножовку, наждачную бумагу;
- дверные петли (12), шурупы (96);
- ткань;
- деревянные бруски (24);
- лак, краску, универсальный клей;
- декоративные элементы (бусины, ленты и т.п.).
Бруски рекомендуется взять толщиной 2 см и шириной 6 см. При этом одна половина должна иметь длину 170 см, а другая – 60 см. Этапы:
- Отмерьте от края каждой планки 6 см, проведите линию. Затем сделайте надпилы по разметкам до половины ширины планок.
- С каждого края планки сделайте врубки, сняв слой дерева до надпила – приставьте к брусу зубило и ударяйте по нему молотком. На внутреннюю поверхность нанесите универсальный клей и соберите планки в раму, после чего плотно прижмите их.
- После высыхания клея отшлифуйте поверхности наждачкой, покройте лаком по дереву. Закрепите на раме дверные петли шуруповертом.
- Готовую основу для ширмы следует декорировать тканью любой фактуры и цвета. Сделайте выкройку по размерам рамы, учтя подгибы. Чтобы прикрепить ткань к основе, воспользуйтесь строительным степлером. Натяжение при этом должно быть хорошим. Закреплять начинайте в следующем порядке: верхняя часть, нижняя часть и боковые стороны.
- Далее займитесь сборкой ширмы на дверные петли. Последних понадобится по 2 на 1 соединение, чтобы складывать изделие в дальнейшем было удобно.

Инструменты и материалы для изготовления ширмы
Для самостоятельного изготовления ширмы потребуется два основных материала: рамы и натянутая на них ткань (шелк, флок, тафта). Рамы можно сбить из деревянного бруса (нетолстого, лучше 3х3 см, иначе выйдет грубовато), реек сечением 6х2, а для умельцев работы с металлом – из профильной трубы прямоугольного сечения.
Определитесь, сколько секций вы хотите видеть в вашей ширме и какого они будут размера. Учитывайте, что узкие и невысокие секции добавляют изделию мобильности. Каркас следует начертить в масштабе и высчитать необходимое количество бруса (трубы).
При выборе ткани следует учитывать функционал ширмы, то есть материал должен быть:
- плотным и непрозрачным;
- приятным для глаза и на ощупь;
- гармонирующим с обоями и меблировкой комнаты.
Одним из рекомендуемых вариантов является портьерная ткань, декоративная с обеих сторон. При расчете ее количества обязательно учтите припуски на подгибку по 3-4 см. Эти припуски следует дважды подогнуть, чтобы не осталось сыплющегося края, и приутюжить.
Мы будем изготавливать ширму на деревянном каркасе, поэтому из инструментов нам понадобятся:
- ножовка;
- шуруповерт и саморезы;
- мебельные уголки;
Обтягиваем ширму тканью
- рояльные или дверные петли;
- степлер для мебели;
- морилка, лак и кисти под них;
- угольник, ножницы, карандаш.
А чтобы готовая ширма не царапала дорогой паркет, на ее ножки следует приобрести подпятники.

















