Самостоятельная сборка котла на дровах
Разобраться с процессом, как сделать дровяной котел, поможет инструкция по его сборке.
Начинать следует с изготовления элемента, предназначенного для подачи воздуха, для чего нужно:
- Взять трубу с толстыми стенками, протяженность которой равна высоте топочной камеры, приварить к ней болт.
- Из листа металла вырезать круг, имеющий диаметр, немного превышающий сечение трубы.
- Просверлить в нем отверстие для болта.
- Соединить между собой трубу и болт, а затем закрутить гайку. При этом воздуховод должен свободно прикрываться листом металла, чтобы была возможность менять величину просвета и тем самым корректировать интенсивность горения топлива.
 
Далее, делая котел на дровах своими руками, следует поступить так:
- Используя болгарку в воздуховодной трубе выполнить вертикальные прорезы шириной1 сантиметр, через которые в топочное отделение будет проникать воздух.
- Вырезать из листа металла круг, имеющий диаметр немного меньший, чем этот же параметр у топки.
- Внутри круга создать отверстие для монтажа воздуховода.
- В него вставить трубу для воздуха, предварительно отступив от ее края 20 –30 сантиметров, после чего приварить.
Потом необходимо изготовить корпус самодельного котла на дровах:
- при использовании старого газового баллона нужно отрезать у него верхнюю часть;
- если выбраны листы металла, их надо скрутить в виде цилиндра, скрепить и приварить дно.
Дымоход выполняют так: в боковой части цилиндра делают отверстие и к нему приваривают трубу с минимальным диаметром10 сантиметров.
 
Затем в корпус агрегата надо вставить трубу подачи воздуха, для чего в днище топки обустроить отверстие. Нужно, чтобы поддувало выступало за пределы агрегата. Труба воздухоподачи должна располагаться ниже места нахождения дымохода.
На следующем этапе, когда делается своими руками дровяной котел для отопления дома, требуется сделать теплорассеивающий диск. Для этого из листа металла толщиной10 миллиметров вырезается блин диаметром чуть меньшим корпуса. Используя стальную проволоку или арматуру делается ручка, которую прикрепляют к диску.
Вариант из кирпича и металла – дешевле и проще
Облегчит и удешевит создание шахтного котла с нижним горением применение кирпича. Из металла делаем только теплообменник вертикального типа. Его можно изготовить
- из листового материала;
- из листов металла с врезкой труб;
- только из труб.
Наибольшая эффективность чисто трубного теплообменника, но он и самый трудный в изготовлении. Внешний вид показан на рисунке, размеры подбираются изготовителем.

На прочном бетонном фундаменте выкладываем поддувальную камеру, устанавливаем колосник. Ставим теплообменник, делаем вокруг него кладку стенок из качественного кирпича. При кладке устанавливаем две дверки. Нижняя дверца ставится так, чтобы можно было поджечь топливо и очистить топку и поддувало от золы. Можно установить две отдельные дверки вместо одной большой. Верхняя дверка служит для загрузки дров, угля, ее можно расположить на лицевой части котла, а можно сверху в виде люка.
На рисунке внизу показан общий вид шахтного котла со стенками из кирпича.
Несколько замечаний по кладке кирпичных стен котла и монтажу. Достаточной будет толщина облицовки в полкирпича. Теплообменник выставляем, чтобы выход горячей воды оказался в самой высокой точке. Это предотвратит создание воздушных пробок, улучшит циркуляцию воды. Кладка проводится с перевязкой швов, поднимается на 2–3 см выше обменника. Дымовую трубу выкладываем из кирпича или устанавливаем из металла.
Типы котлов и принцип их работы
Все котлы, работающие на твердом топливе, подразделены на несколько типов, которые отличаются между собой многими показателями. Но по основным характеристикам, их подразделяют на четыре вида:
- Классические;
- Пиролизные котлы отопления;
- Котлы длительного горения;
- Автоматические;
Классические котлы— принцип работы классического твердотопливного котла заключен в том, что тепло дается путем пламенного сгорания топлива. Имеет две дверцы, через одну из которых загружается топливо, через другую — котел чистится от золы и других продуктов горения. Могут работать на двух видах топлива — дрова и уголь.
Отличаются по материалу изготовления теплообменника, могут быть изготовлены из чугуна или стали. Чугун является более приоритетным в плане долговечности, срок его эксплуатации более 20 лет. Из недостатков можно отметить тот факт, что он боится механических ударов и очень чувствителен к перепадам температур, что может привести к разрушению. Стальной теплообменник более устойчив к перепадам температур и повреждениям, но срок его службы значительно ниже — чуть больше 6 лет.
Пиролизные (газогенераторные) котлы— данный вид котла работает по принципу пиролиза, то есть разложения и газификации твердого топлива. Этот процесс происходит при закрытом дымоходе и закрытой камере сгорания. После высвобождения древесного газа, образовавшегося в процессе пиролиза, он направляется в сопло горелки, где смешивается с вторичным воздухом, который накачивает вентилятор. После этого газовая смесь попадает в камеру сгорания, где воспламеняется. Горение происходит при температуре, которая иной раз достигает 1200°, и процесс будет продолжаться до полного сгорания твердого топлива.
Котлы длительного горения— в этом виде котла длительный процесс горения обеспечивается специальными приемами. В настоящее время существует две системы длительного горения (канадская система Булерьян, и прибалтийская Стропува), но вторая не нашла широкого применения за счет дороговизны, сложности эксплуатации и еще множества технических параметров.
Котлы длительного горения можно отнести к пиролизным котлам, но принцип работы будет немного иным. Первая система (Бурельян) представляет собой печь, состоящую из двух камер, где в нижней камере происходит тление и образование газа. После поступления газа во вторую камеру, происходит смешивание с воздухом и дальнейшее полное его сгорание (дожиг топлива). Конструкция подобного твердотопливного котла представляет собой цилиндр, с ввареными в него трубами на половину окружности. Расположение труб снизу-вверх обеспечивает хорошую циркуляцию воздуха, тем самым увеличивая теплоотдачу. Устанавливаются в основном в нежилых помещениях, отлично подойдет для отопления гаража или дачи. Цена на такой котел адекватная, есть возможность выбрать типоразмер, подходящий той или иной площади.
Котел по системе Стропува имеет два цилиндра, один из которых находится внутри второго, по принципу матрешки. Все пространство между ними заполнено водой, которая постепенно нагревается. Внутренний цилиндр системы играет роль топки, куда при помощи распределителя подается воздух. После загрузки топлива, оно начинает прогорать сверху вниз, тем самым нагревая теплоноситель. Заявленная производителем цена, длительное время горения, от 2 до 4 суток, в зависимости от топлива, требуемое остывание котла и дальнейшая чистка перед новым розжигом, удваивают задачу и приносят неудобства. Поэтому данный тип котла не принес широкого распространения.
Автоматические котлы— в данном типе котла процесс загрузки топлива, и очищение от золы полностью автоматизированы. Котел оснащен шнековым или транспортерным бункером для подачи топлива и автоматического очищения от золы. Вариант угольного автоматического котла подразумевает движение пласта горения топлива, которое необходимо для полного сгорания. Для этого, автоматический котел оснащается подвижными колосниками, или рубящими и двигающими механизмами. Параметры нагрева теплоносителя и горения топлива обеспечиваются принудительным наддувом.
В преимущества и особенности автоматических котлов можно включить;
- Не требуют трудоемкого обслуживания и пристального внимания за процессом горения;
- Снабжены, входящим в комплект, регулятором температуры;
- Многие оснащены датчиком, отслеживающим температуру в самом котле;
- КПД автоматического котла составляет до 85% от общего числа;
- Длительная работа, ограниченная только лишь емкостью бункера для автоматической подачи топлива.
Стоит учесть, что и расход топлива, в частности, угля намного меньше, чем в традиционных твердотопливных котлах.
Самостоятельное изготовление
Сконструировать своими руками котел отопления достаточно сложно. Малейшая неточность, и он будет работать неправильно, что может привести к трагедии. Поэтому необходимо тщательно изучить технологию их изготовления и очень качественно выполнять все мероприятия.
Отопительные приборы шахтного вида
Самостоятельно создать можно шахтный или пиролизный котел. Первый функционирует не только на дровах, но и на угле, торфе или опилках. В его камеру сразу можно загрузить до 50 кг дров.

При полной загрузке камеры топливом и высокой мощности такой прибор непрерывно проработает до 5 часов, при самой малой мощности (15-20 кВт) – до суток. Его КПД – 75%. Мощность таких моделей можно регулировать с помощью автоматики.
Пиролизная модель
Желтый или бесцветный дровяной газ, выделяющийся под воздействием высокой температуры, является источником тепла в пиролизном котле. Для такого отопительного прибора можно использовать только полностью высушенные дрова, иначе он не запустится. Работать пиролизная конструкция может и на пеллетах. Автоматическая подача их в топку (с помощью специальных шнеков) станет дополнительным достоинством котла. Продолжительность работы модели подобного типа при полной загрузке – 12 часов.

Минусы – высокая стоимость (снизить ее можно, если изготовить его самостоятельно), энергозависимость (вентилятор работает с помощью электричества), большие размеры.
 Для изготовления такого прибора нужны:
- труба и лист из стали толщиной 4 мм;
- профтрубы, прутья металлические сечением 2 см;
- электродоты;
- вентилятор;
- кирпичи огнеупорные;
- автоматический регулятор температур;
- крепежи.

Предварительно составляют схему будущего котла со всеми расчетами. За основу берут наиболее удачную в этом плане конструкцию самодельного котла, разработанную инженером Беляевым. В нее вносят корректировки соответственно пожеланием владельца дома. Например, сделать отопление более эффективным можно за счет увеличения объема рубашки теплообменника.
Самодельные пиролизные приборы нужно устанавливать на специально оборудованные для них площадки из шамотного кирпича. После этого их подсоединяют к водяному контуру.

При первом, тестовом включении выясняют, не было ли допущено ошибок в конструкции котла. Если все было сделано правильно, то прибор сможет быстро переключиться в режим газогенератора. В помещении уже в течение получаса станет гораздо теплее.
Инструменты и материалы
Дровяной отопительный прибор – наиболее безопасная конструкция. Автономность его работы, простота эксплуатации, минимальная вероятность взрыва, возможность самостоятельного изготовления – вот основные его достоинства. Его минус – регулярность внесения топлива.

Самодельные дровяные модели котлов можно изготовить из следующих материалов и деталей:
- бочка из металла (объем – 200 л);
- стальной лист толщиной 3-5 мм (для создания топки);
- металлическая труба диаметром 20 мм и толщиной стенки от 3 мм;
- труба Г-образной формы (диаметр – 20 мм);
- колосник;
- дверцы для поддувала и топки.

Самодельные модели дровяных котлов изготавливаются при помощи газосварочного оборудования и болгарки.
Последовательность работ
Перед началом работ необходимо тщательно продумать схему прибора, приобрести все необходимые материалы и инструменты.
Вырезать 3 круга (диаметр каждого 57 см): это дно, верхняя крышка и перегородка между поддувалом и топкой. В двух из них сделать отверстие диаметром 20 мм.
Из листа стали вырезать полосу шириной 400 мм, длиной 3600 мм, вырезать в нем отверстия для дверцы топки, ниже него – для поддувала. Соединить лист сваркой в круг.

Приварить сверху круг с отверстием, снизу – без него. Между ними установить перегородку с колосником.
Сварить трубу и бочку между собой по принципу «один внутри другого». Снизу установить топку с поддувалом. Соединить все элементы с помощью сварки.
В верхней части бочки закрепить Г-образный отрезок трубы: он соединит емкость для нагрева и дымоход. Вода, нагреваясь в бочке, образует пар, который будет свободно выходить в дымоход, тем самым не давая расти давлению в котле.
Вверху и внизу установить патрубки для входа холодной воды и выхода горячей.
Навесить дверцы на топку и поддувало.
Установить конструкцию на фундамент из огнеупорного кирпича.
Такой прибор обогревает с помощью дров, пеллет или торфа, плотно уложенных внутри топки.
Даже простейшая модель дровяного котла требует осторожности и внимания при самостоятельном изготовлении
Расходные материалы и инструменты, необходимые для установки самодельного котла
После того, как были проведены все расчеты, можно приступать к монтажу отопительной системы. Для этого понадобятся следующие инструменты и материалы:
- Стальные трубы;
- Прут с сечением в 20 мм;
- Профильные трубы;
- Центробежный вентилятор;
- Различные гайки и болты;
- Лист из стали;
- Кирпич шамотный.
Самодельные водяные котлы для отопления могут быть исполнены различным образом. Для этого необходимо обладать такими знаниями:
- Как правильно и точно выбрать место для топки самодельного котла;
- Как наиболее верно рассчитать рабочие параметры теплообменника;
- Вычислить наиболее эффективный и оптимальный вариант водоснабжения.
Любой вариант организации отопительной системы, найденный вами, можно усовершенствовать или переделать под свои нужды. Самое главное – это сделать правильный расчет и установить верным образом котел для парового отопления или водяного.
 Изготовление твердотопливного котла
Изготовление твердотопливного котла
Определение с параметрами проекта
Точного определения данному понятию нет. Соответствующее оборудование появилось, как ответ на требования потребителей повысить уровень комфорта в процессе эксплуатации, увеличить выработку тепла в расчете на единицу использованных энергетических ресурсов.
Основным недостатком классических котлов является необходимость регулярного добавления топлива в топку. Сложности создают также следующие факторы:
- высокая интенсивность горения;
- сложность оперативной регулировки и контроля этого процесса;
- неполное использование тепла, которое удаляется вместе с дымом через систему вентиляции.
Для поддержания работы обычного котла лучше иметь рядом достаточный запас дров
Разные конструкции
Для решения отмеченных выше задач используют различные решения. Чтобы не закладывать часто новые порции топлива увеличивают размеры топки. Сделать процесс горения равномерным помогает размещение сверху прижимного устройства, дозированная подача воздуха.
Схема типичного котла этого класса
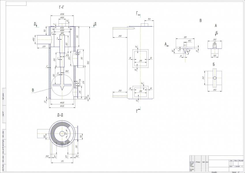
Создать чертежи твердотопливных котлов длительного горения своими руками будет проще после подробного изучения стандартной конструкции:
- В начальном положении прижимное устройство (10) находится в верхнем положении.
- Через дверцу (6) в топку загружают крупную партию дров.
- После поджигания происходит регулируемый механическим приводом (16) процесс горения.
- Свежий воздух подается нагнетателем через телескопическую полую внутри штангу. Он распределяется равномерно через прижимной диск (10).
- Подача кислорода сверху обеспечивает постепенное сгорание топлива, слоями.
- Золу после завершения цикла удаляют через нижнюю дверцу (13).
- Для поднятия диска (10) в верхнее положение используют лебедку (2) с электроприводом.
Недостатком данной конструкции является невозможность произвольной закладки дров в топку. Существенное преимущество – повышенная до 24 часов и более длительность одного рабочего цикла.
В следующей конструкции топливо можно подкладывать по мере необходимости. Здесь использована технология пиролиза. Она характерна дозированной подачей кислорода и низкой интенсивностью горения. Тлеющие дрова выделяют горючий газ. Он сгорает в дополнительной камере.
Пиролизный котел
Эта установка полноценно использует топливо. В продуктах сгорания содержится минимальное количество сажи. Сложной является оптимальная регулировка рабочих процессов.
Газовые и дизельные агрегаты лишены упомянутых недостатков по причине простоты дозирования соответствующих видов топлива. Подобный результат можно получить, если использовать специальным образом спрессованные гранулы из отходов деревообработки, шелухи семечек, иного горючего сырья.
Пеллетный котел
В данном варианте гранулы (пеллеты) засыпают в бункер, откуда они подаются шнековым механизмом в топку. Понятно, что такая конструкция позволяет при необходимости быстро увеличивать и уменьшать подачу топлива. Гибкое изменение производительности котла пригодится для оптимизации работы при изменении внешней температуры, подключении дополнительных потребителей. С гранулами не слишком сложно работать при транспортировке, хранении.
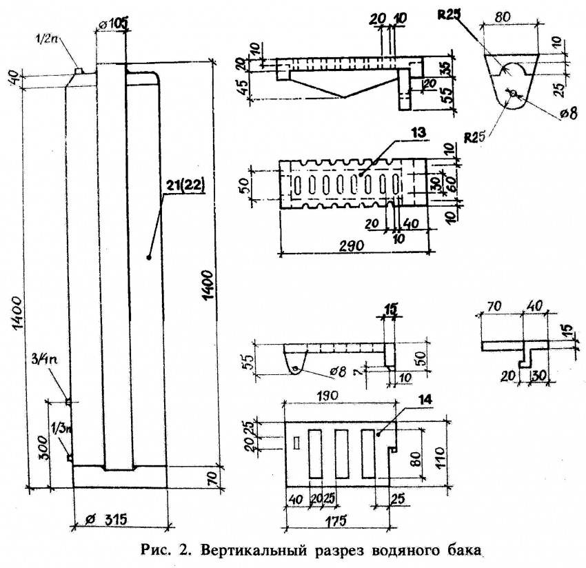
Теплообменник для подогрева воды
Повышают эффективность котлов с помощью сложных структур выходных узлов. В таких конструкциях повышается температура теплоносителя. Аналогичные функции выполняют полые стенки корпуса.
Чертежи твердотопливных котлов длительного горения своими руками
Прежде чем искать соответствующую документацию, необходимо точнее определиться с конструкцией. Предпочтительной является первая схема твердотопливного котла длительного горения, своими руками ее будет создать проще.
Принципиальная схема котла
Для отопления сравнительно небольшого частного дома с общей площадью 150-250 м. кв. достаточно будет следующих размеров:
Чертежи твердотопливных котлов длительного горения своими руками
При высоте чуть более 1,5 метра и ширине около 40 см не сложно будет найти подходящее место для установки. Но надо учитывать необходимость создания технологических проходов для обслуживания. Понадобится свободное пространство сверху для монтажа лебедки и другого оборудования.
Конструкторскую документацию можно создать без соблюдения стандартов
Для реализации частных проектов не обязательно соблюдению ГОСТов. Но чем подробнее получился чертеж твердотопливного котла длительного горения своими руками, тем проще будет исключить ошибки на ранних стадиях.
При удалении большого количества ржавчины перед окраской может понадобиться респиратор
Фото котлов своими руками







































Также рекомендуем просмотреть:
- Вентилятор своими руками
- Прикормка своими руками
- Откатные ворота своими руками
- Ремонт компьютера своими руками
- Станок по дереву своими руками
- Столешница своими руками
- Брусья своими руками
- Лампа своими руками
- Установка кондиционера своими руками
- Отопление своими руками
- Фильтр для воды своими руками
- Как сделать нож своими руками
- Усилитель сигнала своими руками
- Ремонт телевизора своими руками
- Зарядное для аккумулятора своими руками
- Точечная сварка своими руками
- Дымогенератор своими руками
- Металлоискатель своими руками
- Ремонт стиральных машин своими руками
- Ремонт холодильника своими руками
- Антенна своими руками
- Ремонт велосипеда своими руками
- Сварочный аппарат своими руками
- Холодная ковка своими руками
- Трубогиб своими руками
- Дымоход своими руками
- Заземление своими руками
- Стеллаж своими руками
- Блок питания своими руками
- Светильник своими руками
- Жалюзи своими руками
- Светодиодная лента своими руками
- Нивелир своими руками
- Замена ремня ГРМ своими руками
- Лодка своими руками
- Как сделать насос своими руками
- Компрессор своими руками
- Усилитель звука своими руками
- Аквариум своими руками
- Сверлильный станок своими руками
Преимущества и недостатки
У газового отопления имеются свои плюсы и минусы.
Газ – один из дешевых видов энергоносителей. Именно поэтому использование нагревателей на этом топливе стало популярным. К достоинствам использования оборудования на газу относят:
- Высокий КПД котлов.
- Простоту в использовании.
- Безопасность в экологическом плане.
- Невысокую стоимость топлива.
- Нагреватель можно использовать более 40 лет.
Недостатки у подобного оборудования также имеются:
- У оборудования должна быть лицензия, которая выдается газовой службой. При её отсутствии запрещается подключать агрегат к централизованной системе газоснабжения.
- Котел устанавливается в отдельном помещении, что может быть затруднительно в небольших домах.
- Обязательна установка дымохода.
- Для зажигания необходимо подключение к электросети.
- Если не соблюдать правила эксплуатации может случиться взрыв бытового газа.
Монтажно-сборочные работы
Для изготовления котла для обогрева и отопления бани потребуется заготовка из стальной водопроводной трубы большого давления, размерами 50 см в диаметре и 1200 см в длину. Первым делом в стенке корпуса будущего котла необходимо вырезать монтажные окна. Всего потребуется вырезать болгаркой четыре проема:
- Самое большое окно, 60х40 см, используется для установки вспомогательного водяного бака;
- Второе по размеру окно предназначено для топочной камеры размером 40х22 см;
- Загрузочный проем для закладки камней во второй отсек имеет параметры 21х20 см;
- Самый маленький — люк для чистки зольника, размер — 10х20 см.
Следующим этапом внутрь корпуса вваривают круглые поперечные стенки-перегородки. Для выкройки днища используют листовой металл толщиной 4-5 мм. Вставки в корпус вваривают электросваркой сразу после нарезки окон.
Внутри будущей топочной камеры укладывают напиленные блоки из шамотного кирпича. Для нормальной работы котла в бане достаточно, чтобы объем топки составлял не менее 10 л. Одна закладка дров в котел греет помещение бани 40 мин.
Следующим этапом в верхнюю стенку камеры горения вваривают дымовую трубу. Сделать это непросто, но приварить дымоход необходимо сразу и полностью по всей длине стыка, иначе дымовые газы через каменку будут попадать в помещение бани.

На последнем этапе навешиваются дверцы на топку и зольник, устанавливается крышка на верней емкости под кипяток, приваривается основание котла. Специалисты рекомендуют устанавливать печку на футерованную кирпичом площадку, но в условиях парилки и повышенной влажности бани шамот и динас быстро разрушаются. Поэтому владельцы бань приваривают к нижнему торцу котла отрезанную половину колесного диска от грузового автомобиля и заделывают всю конструкцию в бетон.
После того как корпус был окончательно собран, все швы дополнительно проварены электросваркой, можно ставить вспомогательный бак с горячей водой. Накопительную емкость для бани лучше всего купить в готовом виде, например, выбрать модель за 50 долл. из нержавейки. Такой бак не прогорит и не проржавеет, даже если в нем простоит вода всю зиму и лето.
Виды котлов на твёрдом топливе
Твёрдотопливные котлы существуют трёх видов, которые отличаются друг от друга конструкцией, коэффициентом полезного действия и сложностью обслуживания:
- Обычные – оснащаются чугунным или стальным теплообменником и имеют КПД до 80%. Дрова или другие виды твёрдого топлива, сгорая в топке, нагревают ёмкость с водой, которая затем уходит в отопительные батареи.
- На пеллетах – имеют КПД около 90% и отличаются автоматизацией подачи топлива и, как следствие, сложностью конструкции.
- Пиролизные – достигают КПД в 92% за счёт разделения процесса горения на два этапа: сгорания дров при недостатке кислорода и сгорания пиролизных газов, которые образуются на первом этапе.
Обвязка первичных и вторичных колец
Эту схему применяют в сложных системах с большим числом потребителей, работающих в разных температурных режимах.
Порядок монтажа:
- К котлу подключают короткий контур с основными теплосъемными устройствами (например, радиаторами нижнего этажа и бойлером косвенного нагрева). Это первичное кольцо.
- К контуру подсоединяют петли – «теплые полы», поэтажные ветки с радиаторами и т. д. Это вторичные кольца.
Каждая часть оснащена своим циркуляционным насосом. В первичном кольце помпа работает постоянно, и теплоноситель здесь движется непрерывно. При необходимости запускаются нагнетатели во вторичных петлях, вызывая циркуляцию среды и здесь. Запитанные от них потребители получают тепло.
Если помпу во вторичном кольце выключить, движение воды в нем прекратится, т. к. давление в точках подсоединения к первичному контуру одинаково. Для этого их разносят на расстояние не более 4 диаметров трубопровода.
 Схема обвязки первичных и вторичных колец.
Схема обвязки первичных и вторичных колец.
Температурный режим во вторичном кольце регулируют 2 способами:
- запуском и остановкой помпы;
- изменением скорости ее вращения.
Порядок проверки и запуска прибора
Самодельный котел запускает только при заполнении системы водой, осмотра проводки и соединений. При наличии принудительной циркуляции для равномерного прогревания теплоносителя устанавливается насос. В системах с естественной циркуляцией на участке выхода на обратку делают небольшой уклон. Пережатые или порванные кабели электролинии заменяют или повторно изолируют, чтобы ТЭН не вышел из строя. Для защиты от колебаний напряжения монтируют УЗО.
Отопительный агрегат очищают от пыли и грязи, а затем окрашивают жаростойким средством. Перед нанесением краски требуется отшлифовать и загрунтовать поверхность. Покрытие наносится в 2 слоя.
Воду подают в коммуникации так, чтобы не было пробок воздуха. Для контроля завоздушивания пользуются краниками на радиаторах. Далее включают котел в сеть, ожидают прогрева. Температуру воды проверяют мультиметром.
Простой котел своими руками. Обыкновенный котел
Сначала разберем, как изготовить простой дровяной котел своими руками. Модель представляет собой два цилиндра, помещаемых друг в друга. Первый используется в качестве топки. При горизонтальном расположении он может изнутри обкладываться огнеупорным кирпичом.
Второй выступает в качестве конвекционного носителя или используется для подогрева теплоносителя. Закладка дров производится непосредственно в топку.
Подручные материалы
Для уменьшения объема сварочных работ можно использовать толстостенную трубу или бочку. Возможно также использование других подручных материалов.
Сваренную из толстого листа прямоугольную топку можно без труда разместить внутри цилиндрической емкости.
Особенности конструкции
В дровяном котле предусматривается поддувало для притока свежего воздуха и дымоход для отвода отработавших газов. Поддувало располагается в нижней части трубы и позволяет нижнему ряду дров тлеть, вырабатывая дополнительное тепло. Закладка дров в самодельные котлы производится через верх. Для этого подготавливается специальный люк.
Чтобы каждая заложенная стопка дров горела как можно дольше, часто предусматривается специальный груз, выполняемый в форме диска с лопастями и отверстием, имеющим диаметр 20 мм. При надавливании груза происходит сжимание горящего топлива. При этом объем поступающего воздуха значительно сокращается, так как он может проходить только через имеющееся отверстие.
Способ подключения
К системе отопления такой котел можно подключить двумя способами:
- врезав трубы с водой прямо в бочку. Циркулируя между трубами, она будет нагреваться, чтобы затем, поступив в систему отопления, нагревать радиаторы;
- врезав дымоход в бак с теплоносителем. Отработавшие горячие газы будут поступать в емкость, постепенно нагревая теплоноситель.
Увеличение камеры сгорания

Правильно рассчитав размер камеры сгорания и дверцы для подачи дров, Вы не только повысите эффективность котла, но и существенно облегчите себе жизнь при его эксплуатации.
Самый простой способ реализовать длительное горение в котле на дровах – увеличить объем его камеры сгорания. Предположим, что нам необходимо обогреть домовладение площадью 100 кв. м. Для этого нам потребуется 2,3 дров в час (средняя теплотворность древесины составляет около 4,3 кВтч/кг. Следовательно, для того чтобы добиться длительного горения на протяжении 12 часов, нам потребуется камера сгорания, вмещающая 28 кг дров. При средней плотности древесины в 1,73 кг/дм³, ориентировочный объем камеры составит 16,18 литра.
Так как нас интересует загрузка на 24 часа, то объем камеры сгорания составит 32,26 литра. Но нужно учесть, что дрова – это далеко не вода. Они не занимают все пространство целиком, поэтому смело умножаем полученное значение на два – итого получится около 65 литров. Также необходимо оставить запас на нормальное горение, чтобы было где разбушеваться пламени, хотя здесь все зависит от устройства котла.
Вычисляя размеры камеры сгорания, ориентируйтесь на длину поленьев – это поможет создать удобную для загрузки топку.
Становится очевидным, что для реализации сверхдлительного горения необходимо создать очень большую камеру сгорания. А для того чтобы еще больше увеличить эффективность и длительность сгорания одной порции топлива, следует использовать определенные сорта древесины – мы рекомендуем сделать выбор в пользу березы и дуба. Несмотря на то что теплотворная способность у них меньше, чем у той же сосны, эти сорта дерева более плотные. Да и сгорают они при более высокой температуре (почти +900 градусов).
Установка котла
Если выполнены все расчеты и конструкция котла полностью завершена, можно приступать к его установке. В роли расчетного устройства возьмем способ Беляева. Внутренний объем устройства должен быть одинаковым, а вот объем рубашки теплообменника можно увеличить для того чтобы улучшить показатель эффективности котла. После того, как самодельный котел для водяного отопления будет монтирован в уготованное для него место, его необходимо будет присоединить к водяному контуру. Далее следует визуальная проверка, если заделаны все стыки и если все нормально, можно попробовать запустить котел водяного отопления на дровах.
Если установка завершена, котлы водяного отопления на дровах можно покрасить краской, обладающей хорошей огнеупорностью. Это придаст конструкции эстетичный и привлекательный вид.
Если водяной котел отопления был собран правильным образом, и все расчеты отопительной системы были осуществлены с максимальной точностью, то такие водонагревательные котлы для отопления будут более эффективными, чем газовые котлы с низким уровнем КПД или электро-дровяные агрегаты. Дровяные паровые котлы отопления более экономичные, а также с их помощью можно распределить тепло в помещении наиболее удобным для вас образом.

























































